SOLLIES VILLE - CHARMANT PAVILLON T4 + TERRASSE + GARAGE
Solliès-Ville 83210
0
Niché sur les hauteurs entre La Farlède et Sollies Pont , ce charmant et agréable pavillon T4 en duplex vous séduira par son confort et son esprit maison, tout en offrant la simplicité d'un appartement. Idéalement situé dans un secteur résidentiel, et dans un cadre verdoyant, il n'est qu'a quelques minutes de toutes les commodités.
Ce pavillon présente des atouts incontestables:
- Secteur recherché dans un environnement paisible
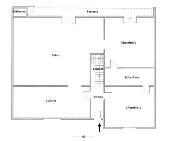
- Grand garage de 42 M² permettant le stationnement sécurisé d'une voiture + un coin stockage et rangements + espace buanderie avec adoucisseur d'eau et accès direct à l'habitation par l'escalier intérieur - porte automatique et pour compléter ce niveau une belle cave très saine de 15 M²
- stationnement facile pour une 2ème voiture
- Une magnifique terrasse avec cuisine d'été ravira vos belles soirées dans un décor très intimiste
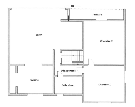
- possibilité d'ouvrir très facilement et à moindre coût la cuisine sur le séjour salon portant la surface de cette pièce de vie à 37 M² environ
- une véranda de 8 M² prolonge la cuisine
- ses 3 chambres équipées chacune d'une climatisation réversible DAIKIN,
- un balcon sans vis à vis offre une vue très dégagée
- une belle salle d'eau contemporaine
- 2 wc
- l'ensemble est très bien entretenu
- des charges de copropriété très faibles
A découvrir sans tarder !!!
Cette annonce référence 292575 vous est présentée par votre agent commercial BSK Immobilier MICHÈLE MATTEI AGOSTINI (EI) immatriculé au RSAC de TOULON (83000) sous le numéro 92054309700017.
Prix du bien : 367 000,00 €
Les honoraires d'agence sont à la charge du vendeur.
A propos des performances énergétiques :
Date de réalisation du diagnostic énergétique : 26/05/2025
Score DPE : 158 kWhEP/m²/an
Score GES : 5 kgepCO2/m²/an
Montant estimé des dépenses annuelles d'énergie pour un usage standard : entre 1140.00 € et 1580.00 € par an. Prix moyens des énergies indexés sur l'année 2022 (abonnements compris).
Les informations sur les risques auxquels ce bien est exposé sont disponibles sur le site Géorisques : www.georisques.gouv.fr
91 m²
4 033 €
167 m²
4
3
1
2
1984
Oui
Consommations énergétiques
Logement économe
158
Logement énergivore (kWhEP/m2/an)
Émissions de gaz à effet de serre
Faible émission de GES
5
Forte émission de GES(kgeqCO2/m2/an)
Contact Michele MATTEI
Contacter gratuitement à l'aide du formulaire ci-dessous.