SOMMIERES SUR LES HAUTEUR COTE LYCEE TERRAIN DE 626M2 EXPO S
Sommières 30250
0
Honoraires à la charge du vendeur.
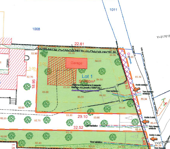
SOMMIERES 30250 / L'AGENCE NEGOCE HABITAT vous propose ce terrain à bâtir de 626m2 situé sur les hauteurs de Sommières dans un quartier calme à proximité du lycée. Terrain vendu avec un permis de construire accordé pour une villa contemporaine de 190m2 + garage et piscine. Permis de construire modifiable ou annulable en fonction de votre projet. Viabilisation en bordure. Prévoir micro station. A VOIR !! Réf : 3493 Tarif : 185 000EUR frais d'agence charge vendeur inclus Tél : 04 99 77 11 2 5Port : 06 14 91 07 60 www.negoce-habitat.com. Les informations sur les risques auxquels ce bien est exposé sont disponibles sur le site Géorisques : www.georisques.gouv.fr Annonce rédigée par Frédéric ALCOVERE Gérant de la société L2A IMMOBILIER siège social situé 178 impasse de l'Olivette 30250 SOMMIERES Société à responsabilité limitée au capital social de 150 000EUR SIRET 824 211 809 000028 Carte pro noCPI 3002 2021 000 000 020. RCP PRO ALLIANZ No 61562918 Cotraitant avec NEGOCE HABITAT - SARL AFCR - au capital social de 5000EUR - siège social situé 117 avenue du Mas de Sapte 34160 St AUNES o SIRET 502 054 802 00025 o TVA : FR22502054802 o Carte pro no34022017000017628 o Garant Galian - 89 Rue de la Boétie - 75008 PARIS
o Accueil - Particulier | Géorisques o Non détention de fonds
626 m²
296 €
626 m²
Sud
Oui
Contact ALCOVERE
Contacter gratuitement à l'aide du formulaire ci-dessous.