SOUS OFFRE Appartement T3 récent et lumineux, 2 places de stati
Villeneuve-le-Roi 94290
0
Honoraires à la charge du vendeur.
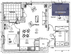
Sous compromis : Appartement T3 de 58,90 m², construit en 2011, situé dans un quartier calme et résidentiel à Villeneuve-le-Roi.
Fonctionnel et bien agencé, il offre un cadre de vie agréable. Dès l'entrée, on découvre une pièce de vie spacieuse et lumineuse, offrant un espace convivial pour se détendre et partager des moments en famille ou entre amis. La cuisine ouverte, aménagée et équipée, s'intègre harmonieusement à cet espace, facilitant les échanges tout en optimisant la fonctionnalité du logement. Les larges ouvertures apportent une belle luminosité naturelle, créant une atmosphère chaleureuse.
L'appartement comprend également deux chambres, une salle de bain et un WC indépendant. Une terrasse prolonge l'espace de vie, idéale pour profiter de l'extérieur.
Vous aurez également un parking en sous-sol et un autre à l'extérieur, les deux sécurisés.
Le chauffage individuel permet une gestion énergétique efficace. Deux places de stationnement extérieures et sécurisées sont à disposition.
Un emplacement pratique et bien desservi
Transports en commun : La gare RER C de Villeneuve-le-Roi se situe à environ 10 minutes à pied, permettant de rejoindre Paris (Bibliothèque François Mitterrand) en 20 minutes et la gare d'Austerlitz en moins de 30 minutes. Accès rapide aux axes routiers : Proximité de la N6 et de l'A86, facilitant les déplacements vers Paris et sa banlieue. Aéroport d'Orly : À 10 minutes en voiture, idéal pour les voyageurs fréquents ou les professionnels travaillant dans le secteur aérien. Commodités à proximité : écoles, commerces, restaurants et espaces verts accessibles à pied ou en quelques minutes en voiture. Pour plus d'informations ou organiser une visite, contactez-moi.
Dans une copropriété de 176 lots. Aucune procédure n'est en cours. Classe énergie E, Classe climat B Montant estimé des dépenses annuelles d'énergie pour un usage standard : entre 1330.00 et 1840.00 sur les années 2021, 2022 et 2023 (abonnements compris). Les informations sur les risques auxquels ce bien est exposé sont disponibles sur le site Géorisques : georisques.gouv.fr.