Honoraires à la charge de l'acquéreur (Prix hors honoraires : 180000 euros).
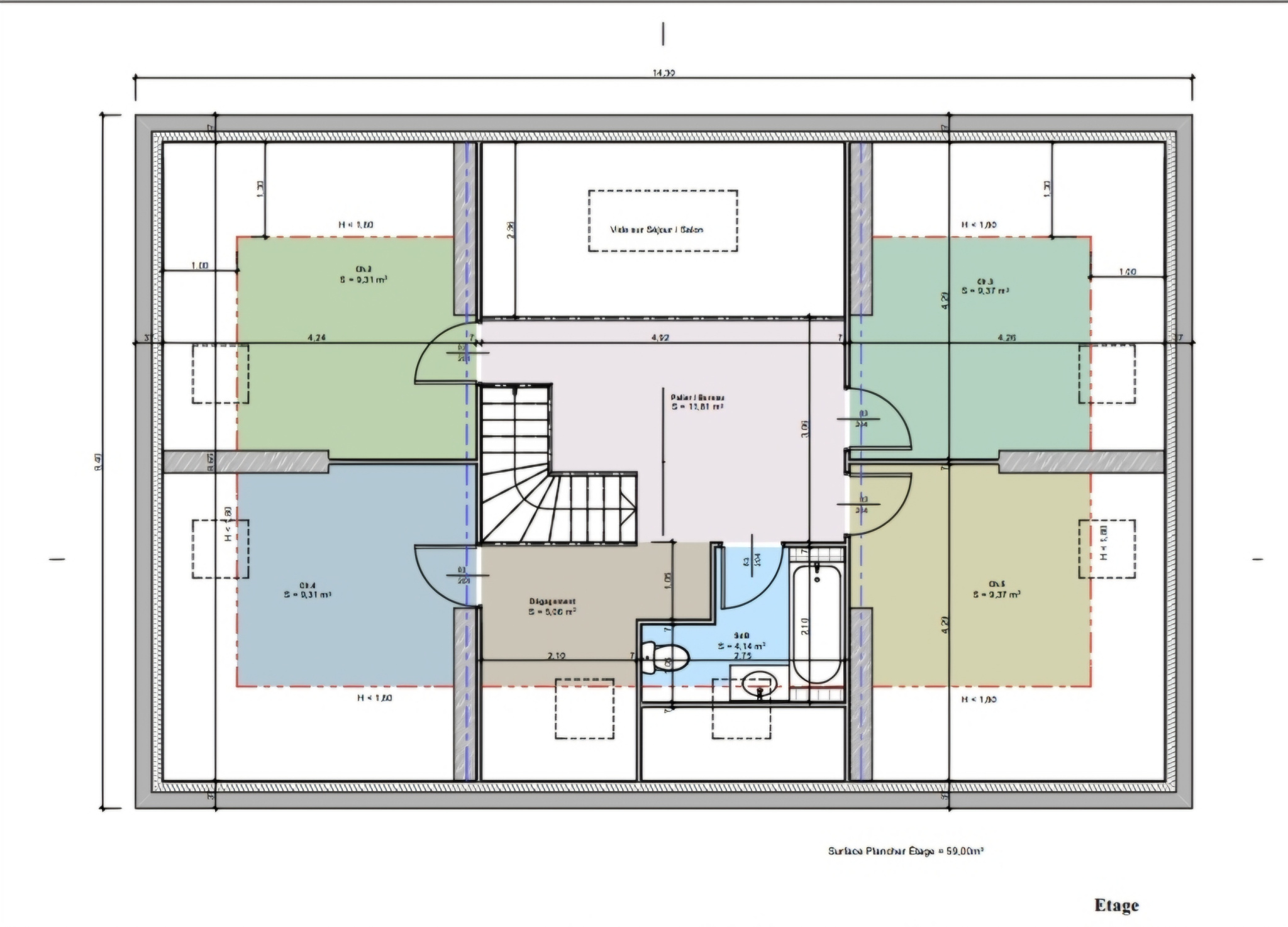
Spacieuse maison familiale, située à 15 mn de Bar-sur-Aube, 10 mn de l'autoroute, 30mn de Chaumont et 30 mn de Nigloland. Cette maison de 174 m2, 5 chambre est située dans un lotissement de Longchamp sur Aujon et repose sur un terrain de 2018 m2, clos. Le terrain se décompose en deux parcelles distintes, dont l'une est à l'état de verger. La maison se compose, au rdc, d'une entrée avec rangements, d'une pièce de vie avec cuisine ouverte, aménagée et équipée, moderne et fonctionnelle, séjour/salle-à-manger de 46 m2, d'une chambre de 11 m2, de toilettes et d'une salle de bains de 7 m2, d'une buanderie/débarras de 18 m2 . Dans l'entrée se trouve, un escalier donnant sur un palier qui dessert une suite parentale de 16 m2, avec douche/ hammam, toilettes et dressing, deux chambres de 13 m2, et une dernière chambre de 12 m2, avec salle d'eau et dressing de 5 m2, ainsi qu'un grenier aménageable de 45 m2, aménageable. Sous la maison, se trouve un double garage, une cave et une chaufferie, avec entrée latérale, pour le stockage du bois. Volets roulants fenêtres bois, chauffage chaudière bois, pompe à chaleur air/eau,chauffe-eau thermodynamique. La maison est dotée d'une piscine creusée, non chauffée, avec bâche de protection, d'une surface de 5mX11m, profondeur 1.2 à 1.9m. et d'une terrasse ombragée. DPE D/ GES C, tout à l'égoût, maison éligible au programme de rénovation énergétique. taxefoncière 915 Visites au 0770998577
Honoraires inclus de 5% TTC à la charge de l'acquéreur. Prix hors honoraires 180 000 . Classe énergie D, Classe climat C Montant moyen estimé des dépenses annuelles d'énergie pour un usage standard, établi à partir des prix de l'énergie de l'année 2022 : entre 1200.00 et 1500.00 . Les informations sur les risques auxquels ce bien est exposé sont disponibles sur le site Géorisques : georisques.gouv.fr.