Spacieuse Maison neuve VANNES gare et centre à pied
Vannes 56000
0
Honoraires à la charge du vendeur.
L'agence 'MON BIEN A LA MER', spécialiste de l'immobilier neuf sur les côtes Bretonnes, vous présente :
Rare : à 5 min à pied écoles et gare TGV. Maison neuve dans un petit lotissement privé de 8 maisons Livrée tout fini (sauf cuisine) fin 2026.
Chauffage électrique + ballon thermodynamique. Maison avec prix clef en main, tout fini (sauf cuisine) : peintures, engazonnement, taxes, clôture, etc Frais de notaire réduits. Plans modifiables.
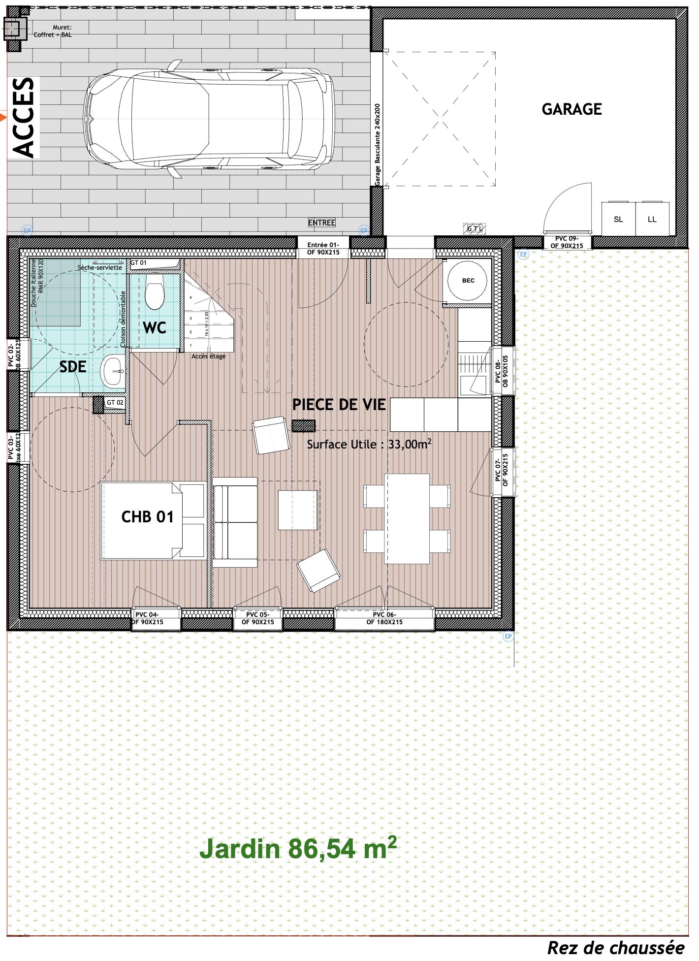
RDC : séjour 39m2 et suite parentale 17m2 avec salle d'eau. wc suspendus séparés. Etage : 3 chambres 12-12-15m2, salle de bains et wc. Volets roulants électriques. Double vitrage isolant.
Garage 23m2+stationnement. Terrain 200m2.
Nous consulter.
Honoraires à la charge du vendeur. Non soumis au DPE. Les informations sur les risques auxquels ce bien est exposé sont disponibles sur le site Géorisques : georisques.gouv.fr.
Votre conseiller MON BIEN A LA MER : Gérant - .fr MON BIEN A LA MER Carte T CPI 2201 2018 000 025 040 RCP ACM IARD B1 7025278
Maison contemporaine
105.29 m²
4 701 €
39 m²
199 m²
5
4
1
1
2 (séparés)
1
1
Contact mon bien à la mer
Contacter gratuitement à l'aide du formulaire ci-dessous.