Spacieuse Maison non mitoyenne 10 min du Port, grand terrain, no
Concarneau 29900
0
Honoraires à la charge de l'acquéreur (Prix hors honoraires : 405000 euros).
L'agence 'MON BIEN A LA MER', spécialiste de l'immobilier neuf sur les côtes Bretonnes, vous présente :
Rare - Nouvelle résidence de seulement 6 maisons sur les hauteurs de CONCARNEAU, à moins de 10 min à pied du Port, non mitoyennes avec de beaux jardins. Livraison mi 2027, Normes RE2020, Frais de notaire réduits.
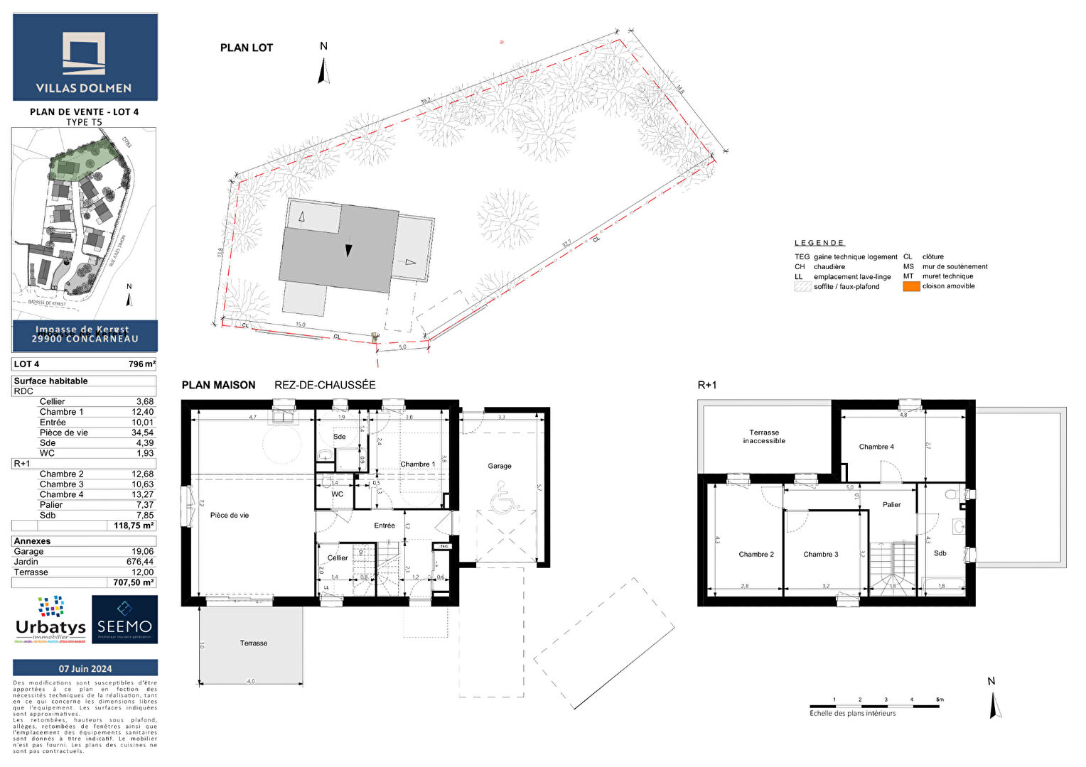
Belle Maison contemporaine de 98,66m2 exposée sud ouest sur terrain de 555m2 comprenant : - Au rez de chaussée : Séjour 35m2, Chambre 12m2, salle d'eau, wc séparés, cellier, entrée, placards, terrasse, garage, jardin - A l'étage : Deux chambres, mezzanine, salle de bains, wc séparés.
Pompe à Chaleur, Carrelage grand format, menuiseries/porte de garage électriques. Possibilité Personnalisation de plans.
Nous Consulter.
Non soumis au DPE. Les informations sur les risques auxquels ce bien est exposé sont disponibles sur le site Géorisques : georisques.gouv.fr.
Votre conseiller MON BIEN A LA MER : Gérant - .fr MON BIEN A LA MER Carte T CPI 2201 2018 000 025 040 RCP ACM IARD B1 7025278
Maison contemporaine
98.66 m²
4 105 €
35 m²
555 m²
4
3
1
1
2 (séparés)
2
Contact mon bien à la mer
Contacter gratuitement à l'aide du formulaire ci-dessous.