Résidence en cours de travaux à AVRILLE pour fin 2026 : Seulement 15 minutes de l'hypercentre d'Angers grâce au tramway accessible à 300 mètres. Commodités à pied. Le programme propose un habitat diversifié, allant du studio au 5 pièces, ainsi que des maisons avec jardins privatifs. Certifié NF Habitat, ce programme allie confort urbain et douceur de vivre avec une omniprésence du végétal.
Au dernier étage, Maison sur le Toit de 99mm2, traversante sud-est / nord-ouest avec double terrasse 39m2 :
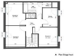
- Au 1er niveau : Beau séjour de 30m2, Chambre 11,5m2, salle d'eau douche à l'italienne, wc séparé, cellier. - A l'étage : 3 chambres 10,2-9,84-9,63m2, salle de bains avec baignoire, double vasque et wc, bureau 6,79m2.
Stationnement sous sol inclus.
Nous consulter.
Honoraires à la charge du vendeur. DPE en cours. Les informations sur les risques auxquels ce bien est exposé sont disponibles sur le site Géorisques : georisques.gouv.fr.
Votre conseiller MON BIEN A LA MER : Gérant - .fr MON BIEN A LA MER Carte T CPI 2201 2018 000 025 040 RCP ACM IARD B1 7025278
99.35 m²
3 915 €
30 m²
5
4
1
1
2 (séparés)
4 sur 4
1
2
Oui
Contact mon bien à la mer
Contacter gratuitement à l'aide du formulaire ci-dessous.