Résidence neuve en cours de livraison. Frais de notaire réduits. Ecole, bus, commodités à pied. Gare de CAEN 9 min en voiture. Programme paysager avec appartements et maisons, potager, aire de jeux.
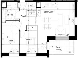
3è et dernier étage, exposition sud ouest pour ce T3 comprenant : - Beau séjour 30,43m2 expos sud ouest et sud est . - Entrée, dégagement, placards, Salle de bains, wc séparés - Deux chambres 11,77-9,5m2. - Terrasse 6,86m2 - Parking inclus.
Nous Consulter
Honoraires à la charge du vendeur. DPE en cours. Les informations sur les risques auxquels ce bien est exposé sont disponibles sur le site Géorisques : georisques.gouv.fr.
Votre conseiller MON BIEN A LA MER : Gérant - .fr MON BIEN A LA MER Carte T CPI 2201 2018 000 025 040 RCP ACM IARD B1 7025278
66.5 m²
3 759 €
30 m²
3
2
1
1 (séparé)
3 sur 3
1
1
Oui
Contact mon bien à la mer
Contacter gratuitement à l'aide du formulaire ci-dessous.