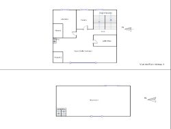
Au 3ème et dernier étage d'une petite copropriété située au coeur du quartier Bonsecours, à quelques pas de la plage et du marché aux poissons, charmant 3 pièces en duplex de 33m² en carrez et 48m² au sol.. Il dispose d'une entrée desservant un séjour avec balcon ( à rénover pour en profiter ) bénéficiant d'une belle vue sur les toits, une cuisine indépendante, 2 chambres dont l'une sous combles, une salle d'eau avec WC. La double exposition et la jolie vue dégagée procurent une belle luminosité. La plage et les commerces sont à quelques pas
Honoraires à la charge du vendeur. Dans une copropriété de 10 lots. Quote-part moyenne du budget prévisionnel 480 /an. Aucune procédure n'est en cours. Logement à consommation énergétique excessive : Classe énergie F, Classe climat F Montant estimé des dépenses annuelles d'énergie pour un usage standard : entre 1980.00 et 2730.00 sur les années 2021, 2022 et 2023 (abonnements compris). Les informations sur les risques auxquels ce bien est exposé sont disponibles sur le site Géorisques : georisques.gouv.fr.
48 m²
5 031 €
14 m²
3
2
1
1
3 sur 3
40.00 € / mois
Oui
1940
Ouest
1
Oui
Oui
Oui (10 lots)
Consommations énergétiques
Logement économe
418
Logement énergivore (kWhEP/m2/an)
Émissions de gaz à effet de serre
Faible émission de GES
91
Forte émission de GES(kgeqCO2/m2/an)
Contact AURELIE BONNET IMMOBILIER
Contacter gratuitement à l'aide du formulaire ci-dessous.