L'agence 'MON BIEN A LA MER', spécialiste de l'immobilier neuf sur les côtes Bretonnes, vous présente :
Très rare : résidence neuve en front de mer en cours d'achèvement à PORNICHET. Seulement 23 appartements de grand standing. Situation exceptionnelle : sur la place centrale, marché plage commerces à pied. Livraison printemps 2026, frais de notaire réduits.
Ascenseur, parkings sous sol & Boxs, local vélo, local planches surf, boites aux lettres connectés, plancher chauffant/rafraichissant, grandes surfaces vitrées toute hauteur, prises individuelles pour voitures électriques, pompe à chaleur, domotique : tout a été pensé pour votre confort.
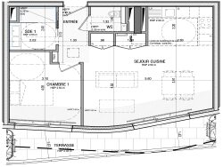
Cet appartement de 52,9m2 est situé au 2è étage, expo sud est. Belle terrasse de 12,9m2 donnant sur le séjour de 33m2 et la chambre de 11,7m2. Salle d'eau double vasque douche à l'italienne grande taille, sèche serviette. WC séparés. Placards. Parking sous sol inclus.
Nous Consulter pour visite du chantier.
Honoraires à la charge du vendeur. Non soumis au DPE. Les informations sur les risques auxquels ce bien est exposé sont disponibles sur le site Géorisques : georisques.gouv.fr.
Votre conseiller MON BIEN A LA MER : Gérant - .fr MON BIEN A LA MER Carte T CPI 2201 2018 000 025 040 RCP ACM IARD B1 7025278
52.9 m²
11 248 €
33 m²
2
1
1
1 (séparé)
2 sur 3
Sud
Oui
1
1
Oui
Contact mon bien à la mer
Contacter gratuitement à l'aide du formulaire ci-dessous.