Nouvelle réalisation entre Terre et Mer, à pied du Centre Bourg et 1,5km des plages et du Golf. Une petite résidence à taille humaine, au calme, entourée de champs, sur les hauteurs, offrant de belles vues dominantes. Livraison fin 2026. travaux en cours.
Frais de notaire réduits, Ascenseur, Normes RE2020, Accès sécurisé, local à vélos.
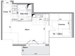
Spacieux T2bis dernier étage exposé sud est avec terrasse et parking.
Nous consulter.
Honoraires à la charge du vendeur. Dans une copropriété de 9 lots. Aucune procédure n'est en cours. Non soumis au DPE. Les informations sur les risques auxquels ce bien est exposé sont disponibles sur le site Géorisques : georisques.gouv.fr.
Votre conseiller MON BIEN A LA MER : Gérant - .fr MON BIEN A LA MER Carte T CPI 2201 2018 000 025 040 RCP ACM IARD B1 7025278
47.3 m²
4 545 €
2
1
1
1
2 sur 2
Oui
1
1
Oui (9 lots)
Contact mon bien à la mer
Contacter gratuitement à l'aide du formulaire ci-dessous.