L'Agence MON BIEN A LA MER, Spécialiste de l'immobilier neuf en Bord de Mer, vous présente :
RARE : résidence de standing quartier Ville Bois, 10 min à pied du Port des Minimes (1er Port de plaisance d'Europe) et de la gare (2h30 de PARIS). Tout à proximité, quartier recherché. Prestations de standing : Chauffage au sol par pompe à chaleur, Menuiseries alu bicolores coulissantes, parquet contrecollé ou carrelage grand format, wc suspendus, faïence grand format toute hauteur, salle d'eaux équipées, volets roulants électriques ou volets brise soleil orientables, ascenseur, normes RE2020.
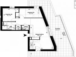
Ce T3 est situé au 5è et dernier étage et offre : - Séjour de 38,7m2 - Deux Chambres 12,5-10,1m2 - Salle d'eau avec douche 5,6m2 - wc séparé, cellier - Superbe terrasse de 56m2 - Parking sous sol inclus.
Nous Consulter
Honoraires à la charge du vendeur. Non soumis au DPE. Les informations sur les risques auxquels ce bien est exposé sont disponibles sur le site Géorisques : georisques.gouv.fr.
Votre conseiller MON BIEN A LA MER : Gérant - .fr MON BIEN A LA MER Carte T CPI 2201 2018 000 025 040 RCP ACM IARD B1 7025278
69.9 m²
8 011 €
39 m²
3
2
1
1 (séparé)
4 sur 5
Oui
1
1
Oui
Contact mon bien à la mer
Contacter gratuitement à l'aide du formulaire ci-dessous.