L'agence 'MON BIEN A LA MER', spécialiste de l'immobilier neuf sur les côtes Bretonnes, vous présente :
Coeur de ville : nouvelle résidence de standing en construction à 100m de la Place du Général de Gaulle, : Commerces et bus à pied, plage de BINIC 5 min en voiture, gare TGV ST BRIEUC 12 min en voiture.
Résidence RE2020 organisée en 4 petits îlots avec jardin intérieur, parking sous sol, sécurisée. Chauffage par pompe à chaleur, parquet stratifié berry alloc, volets roulants électriques, douches à l'italienne, local vélo. Appartements entièrement finis et équipés (sauf cuisine).
Livraison 4è trimestre 2026, travaux en cours, visitable. Ascenseur. Frais de notaire réduits.
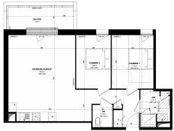
Spacieux T3 côté cour, belle vue sur l'Eglise de PORDIC, terrasse 8m2, comprenant : - Grand Séjour 38m2, - Deux chambres 11,42-9,48m2 - salle d'eau douche à l'italienne, wc séparés, placard - parking sous sol inclus.
Nous Consulter.
Honoraires à la charge du vendeur. Non soumis au DPE. Les informations sur les risques auxquels ce bien est exposé sont disponibles sur le site Géorisques : georisques.gouv.fr.
Votre conseiller MON BIEN A LA MER : Gérant - .fr MON BIEN A LA MER Carte T CPI 2201 2018 000 025 040 RCP ACM IARD B1 7025278
66.6 m²
4 263 €
38 m²
3
2
1
1 (séparé)
1 sur 3
Oui
1
1
Contact mon bien à la mer
Contacter gratuitement à l'aide du formulaire ci-dessous.