L'Agence MON BIEN A LA MER, Spécialiste de l'immo neuf en Bord de Mer, vous présente :
Entre terre et mer, secteur calme, à proximité de l'hippodrome et du tennis club. Petite résidence neuve pour début 2028, organisée autour d'un jardin paysager, votre logement reprend l'architecture locale. Normes RE2020, climatisation réversible chaud/froid, Frais de notaire réduits. Centre ville, commerces, plage à 15 min à pied.
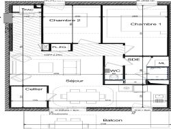
Ce T3 est situé au 1er et dernier étage : - Séjour 34,75m2 + cellier 3,29m2, exposition sud/ouest - Large Terrasse 11,17m2 - Deux chambres 13-9,5m2 - Entrée, Salle d'eau douche à l'italienne, wc suspendus séparés, placard à machines - Parking inclus.
Nous Consulter
Honoraires à la charge du vendeur. Non soumis au DPE. Les informations sur les risques auxquels ce bien est exposé sont disponibles sur le site Géorisques : georisques.gouv.fr.
Votre conseiller MON BIEN A LA MER : Gérant - .fr MON BIEN A LA MER Carte T CPI 2201 2018 000 025 040 RCP ACM IARD B1 7025278
66.65 m²
4 711 €
35 m²
3
2
1
1 (séparé)
1 sur 1
1
1
Oui
Contact mon bien à la mer
Contacter gratuitement à l'aide du formulaire ci-dessous.