L'agence 'MON BIEN A LA MER', spécialiste de l'immobilier neuf en Bord de Mer, sélectionne auprès des promoteurs les meilleures opérations aux mêmes prix, sans commission d'agence supplémentaire. Bénéficiez de notre expertise indépendante, et de nos services (aide aux plans, maquette, drone, visite virtuelles). Nous vous présentons ce bien :
Superbe emplacement pour cette petite résidence à BENERVILLE SUR MER 5 min à pied de la plage des Ammonites, au calme. 6 min en voiture de la gare de DEAUVILLE.
Cette résidence de caractère vous offre de belles prestations et s'insère harmonieusement dans son environnement, adossée au Mont Canisy et voisin de l'hippodrome de Clairefontaine. L'ensemble mixe enduit clair, colombages de teinte 'Vert Normandie', parements en pierre et balcons avec garde-corps métalliques. Les toitures sont d'inspiration Mansart intégrant de l'ardoise, du zinc et du bois peint. La résidence est entièrement close, végétalisée (près de 1600 m² d'espaces libres et une centaine d'arbres prévus) avec des cheminements piétons en pavés.
Belles prestations intérieures personnalisables. Isolation phonique et thermique renforcée, chauffage électrique avec ballons thermodynamiques. L'hyper-centre de Deauville et sa gare (reliant Paris) sont accessibles en moins de 15 minutes via la ligne de bus 111 située à proximité. Ascenseur. Frais de notaire réduits. Livraison mi 2028.
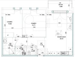
Spacieux T3 au dernier étage : Séjour, balcon, entrée, cellier, salle d'eau douche à l'italienne, wc séparé. Deux chambres de 10,82 et 12,71m2 ( + sous pentes). Garage inclus.
Nous consulter.
Honoraires à la charge du vendeur. Non soumis au DPE. Les informations sur les risques auxquels ce bien est exposé sont disponibles sur le site Géorisques : georisques.gouv.fr.
Votre conseiller MON BIEN A LA MER : Gérant - .fr MON BIEN A LA MER Carte T CPI 2201 2018 000 025 040 RCP ACM IARD B1 7025278
64.18 m²
8 102 €
3
2
1
1 (séparé)
3 sur 3
Oui
1
1
Oui
Contact mon bien à la mer
Contacter gratuitement à l'aide du formulaire ci-dessous.