Situé au coeur d'une copropriété bien entretenue et appréciée pour son calme, ce lumineux T3 de 70 m², au 4? étage avec ascenseur, offre un cadre de vie à la fois pratique et agréable.
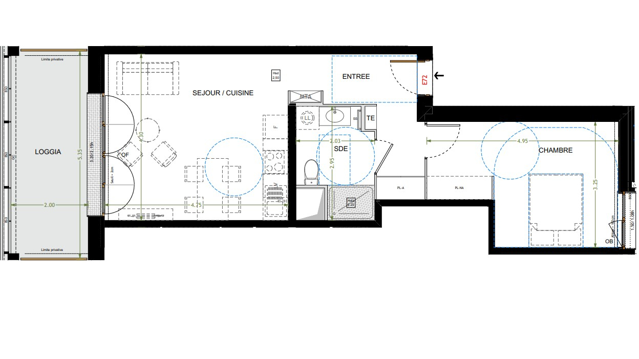
Dès l'entrée, vous découvrez une première chambre équipée d'un dressing intégré et bénéficiant d'une exposition ouest. La cuisine indépendante, accompagnée de son cellier, constitue un espace fonctionnel, parfaitement pensé pour le quotidien et baigné de lumière naturelle. L'appartement s'ouvre ensuite sur une vaste pièce de vie d'environ 28 m², permettant aisément d'aménager un salon confortable ainsi qu'une belle salle à manger conviviale. Cet espace lumineux devient rapidement le coeur de l'appartement. Coup de coeur assuré pour la salle de bain moderne, reposante et très tendance, mêlant bois et travertin. La seconde chambre, plus spacieuse que la première, bénéficie d'une exposition est et dispose d'un véritable coin dressing, offrant un espace de rangement généreux et bien structuré.
L'agencement offre la possibilité de créer une troisième chambre tout en conservant des volumes confortables.
Côté stationnement, un parking libre et sécurisé est mis à disposition des résidents au sein de la copropriété. Une cave vient également compléter le bien, offrant un espace de stockage supplémentaire appréciable.
Un atout supplémentaire : le changement du système de chauffage pour un raccordement au réseau urbain vient d'être voté. Cette amélioration permettra une réduction des dépenses énergétiques estimée à environ 40 %, et donc une baisse significative des charges annuelles.
Concernant la localisation, il s'agit d'un emplacement stratégique à Vénissieux, secteur Parilly : 2 min de l'accès au périphérique 5 min à pied du métro D 20 min à pied de la gare SNCF Nombreux commerces à proximité Bus et tramway à distance immédiate
Si cet appartement vous plaît ou si vous avez un véritable coup de coeur, je serai ravie d'échanger avec vous et de vous le faire découvrir. N'hésitez pas à me contacter pour toute question ou pour organiser une visite.
Honoraires à la charge du vendeur. Dans une copropriété de 150 lots. Quote-part moyenne du budget prévisionnel 2 700 /an. Aucune procédure n'est en cours. Classe énergie E, Classe climat E Montant moyen estimé des dépenses annuelles d'énergie pour un usage standard, établi à partir des prix de l'énergie de l'année 2021 : entre 1110.00 et 1550.00 . Les informations sur les risques auxquels ce bien est exposé sont disponibles sur le site Géorisques : georisques.gouv.fr. Ce bien vous est proposé par un agent commercial (Entreprise individuelle).
Votre conseiller CESAR ET BRUTUS : Clothilde LAMBELIN Agent commercial (Entreprise individuelle)