L'agence 'MON BIEN A LA MER', spécialiste de l'immobilier neuf sur les côtes Bretonnes, vous présente :
Emplacement exceptionnel : Port de Dahouët : Résidence de grand standing de 33 lots. Matériaux nobles, surfaces généreuses. Frais de notaire réduits. Livrée et visitable.
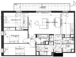
Beau T4 de 98m2 exposé Ouest+Sud, 1er étage en pignon, comprenant : - Séjour/cuisine 35m2, entrée/placards, cellier 3m2, wc séparé - 3 chambres 13,47-12,3-13,12m2 avec placards, salle d'eau, salle de bains avec 2è wc, - Terrasse 14m2 Parquet contrecollé, carrelage/faïence standing, wc suspendus, menuiseries alu/volets roulants électriques. Double parking sous sol inclus.
Nous Consulter
Honoraires à la charge du vendeur. Classe énergie A, Classe climat A Montant estimé des dépenses annuelles d'énergie pour un usage standard : entre 510.00 et 740.00 sur les années 2021, 2022 et 2023 (abonnements compris). Les informations sur les risques auxquels ce bien est exposé sont disponibles sur le site Géorisques : georisques.gouv.fr.
Votre conseiller MON BIEN A LA MER : Gérant - .fr MON BIEN A LA MER Carte T CPI 2201 2018 000 025 040 RCP ACM IARD B1 7025278
98 m²
4 541 €
4
3
1
1
2 (séparés)
1 sur 3
Oui
2
1
Consommations énergétiques
Logement économe
57
Logement énergivore (kWhEP/m2/an)
Émissions de gaz à effet de serre
Faible émission de GES
1
Forte émission de GES(kgeqCO2/m2/an)
Contact mon bien à la mer
Contacter gratuitement à l'aide du formulaire ci-dessous.