L'Agence MON BIEN A LA MER, Spécialiste du neuf en Bord de Mer, vous présente :
TRAVAUX EN COURS : rare : petite résidence de standing à 150m de la Place centrale de Pornichet et 300m du Port/plage. Livraison fin 2026. Ascenseur, Frais de notaire réduits.
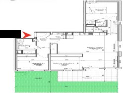
Spacieux T4 en rez de chaussée exposé sud comprenant : - Séjour 39,11m2 avec chambre 10,6m2 attenante, - Deux suites avec chacune sa salle d'eau attenante, - 2 wcs séparés, entrée, placards, - Jardin/terrasse 48m2, - Parking en sus (30 000 euros).
Nous Consulter
Honoraires à la charge du vendeur. Non soumis au DPE. Les informations sur les risques auxquels ce bien est exposé sont disponibles sur le site Géorisques : georisques.gouv.fr.
Votre conseiller MON BIEN A LA MER : Gérant - .fr MON BIEN A LA MER Carte T CPI 2201 2018 000 025 040 RCP ACM IARD B1 7025278
91.6 m²
6 877 €
39 m²
4
3
2
2 (séparés)
Oui
1
Oui
Contact mon bien à la mer
Contacter gratuitement à l'aide du formulaire ci-dessous.