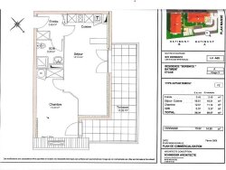
SPECIAL INVESTISSEUR Appartement vendu loué. Le locataire est en place depuis le 01/07/2023. BAIL DE 3 ANS Ce joli F2 lumineux situé au 3ème et dernier étage dans une résidence calme et sécurisée vous offre de belles prestations : une entrée avec placard mural, un séjour, un coin cuisine aménagé, une chambre avec placard mural, une salle d'eau, un grand balcon. Une place de stationnement en sous-sol complète le bien. Le chauffage est individuel électrique. Le bien est loué actuellement 400.00 hors charges Date renouvellement de bail : 30/06/2026 Charges annuelles de copropriété (eau froide, entretien des communs, espaces verts, ascenseur, piscine, porte automatique) : 1137
37.49 m²
2 001 €
2
1
1
3
95 € / mois
2009
Électrique
Aménagée
Oui
1
Oui (72 lots)
Consommations énergétiques
Logement économe
245
Logement énergivore (kWhEP/m2/an)
Émissions de gaz à effet de serre
Faible émission de GES
7
Forte émission de GES(kgeqCO2/m2/an)
Contact ALSAGEST
Contacter gratuitement à l'aide du formulaire ci-dessous.