Spécial investisseurs - En plein coeur du village de Pollionnay, je vous propose à la vente cet appartement de type 3 - VENDU AVEC UN LOCATAIRE EN PLACE - FIN DE BAIL 12/2028) -
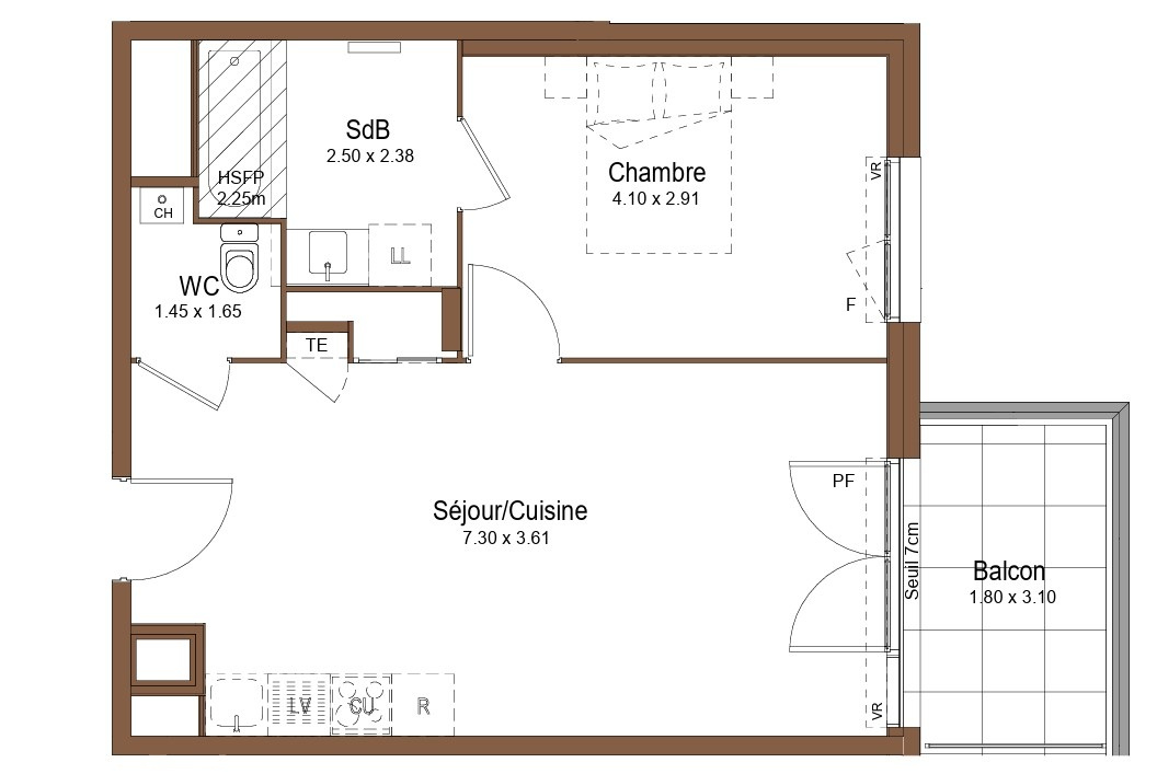
Loyer actuel 826 euros (HC) - (augmentation prévue en Décembre 2025) - situé dans un petit immeuble au 2ème et dernier étage , d'une surface de 68, 25 M2 ce bien est en très bon état, lumineux et avec un emplacement privilégié - Pièce de vie avec cuisine aménagée, deux chambres, une belle salle d'eau, un toilette dégagement avec placards muraux et une cave - Toutes commodités au pied de la Bâtisse - POUR INFORMATION à compter du 1/01/2026, les diagnostics énergétiques (DPE) seront revus à la hausse. De ce fait, le DPE de l'appartement passera en E - Possibilité de louer le bien jusqu'en 2034 sans avoir à réaliser de travaux énergétiques....;
Faibles charges - chauffage individuel - Contact pour visites Géraldine (Mandataire immobilier)
Cette annonce référence 295528 vous est présentée par votre agent commercial BSK Immobilier GERALDINE GUILLEN (EI) immatriculé au RSAC de LYON-3E-ARRONDISSEMENT (69003) sous le numéro 75202454700024.
Prix du bien : 228 800,00 €
Les honoraires d'agence sont à la charge du vendeur.
A propos de la copropriété :
Pas de procédure en cours.
Nombre de lots : 4
Charges prévisionnelles annuelles : 900,00 €
A propos des performances énergétiques :
Date de réalisation du diagnostic énergétique : 06/08/2025
Score DPE : 513 kWhEP/m²/an
Score GES : 17 kgepCO2/m²/an
Montant estimé des dépenses annuelles d'énergie pour un usage standard : entre 2656.00 € et 3594.00 € par an. Prix moyens des énergies indexés sur l'année 2021 (abonnements compris).
Les informations sur les risques auxquels ce bien est exposé sont disponibles sur le site Géorisques : www.georisques.gouv.fr
68 m²
3 365 €
3
2
1
1
2 sur 2
1940
Oui
Consommations énergétiques
Logement économe
513
Logement énergivore (kWhEP/m2/an)
Émissions de gaz à effet de serre
Faible émission de GES
17
Forte émission de GES(kgeqCO2/m2/an)
Contact GERALDINE GUILLEN
Contacter gratuitement à l'aide du formulaire ci-dessous.