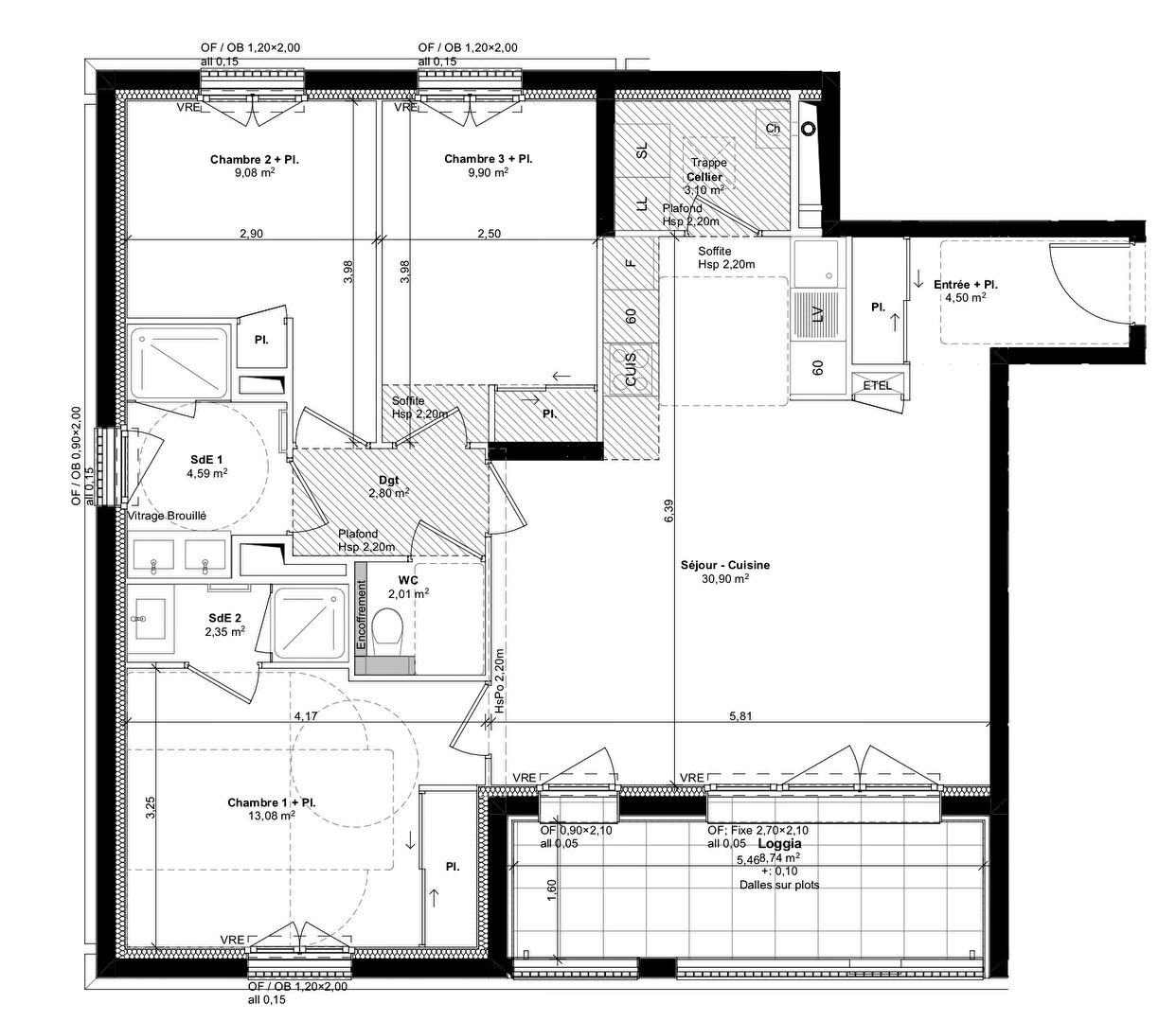
Saint Malo - Appartement 4 pièces 84.33m² Sud- 2 loggias - 1er étage - ascenseur - Garage et stationnement en sous-sol sécurisé Dans un quartier résidentiel calme, proche des plages, commodités et commerces, .. au sein d'une résidence de standing aux dernières normes, au 1er étage avec ascenseur, appartement de 4 pièces de 84.33 m² exposé Sud, comprenant : une entrée avec placard, un vaste séjour salon avec cuisine ouverte donnant accès à une loggia de 8.53m², d'une buanderie/cellier, dégagement, trois chambres dont une avec loggia de 4.27m², deux salles d'eau, WC indépendant. Un garage et un stationnement en sous-sol sécurisés complètent ce bien. Prix promoteur - frais de notaire réduits. Les informations sur les risques auxquels ce bien est exposé sont disponibles sur le site Géorisques : www.georisques.gouv.fr. Copropriété de 57 lots - dont 17 lots habitation. (Pas de procédure en cours). Charges annuelles : 1209 euros.