Studio 28m2 vendu loué proche campus et centre ville
Poitiers 86000
0
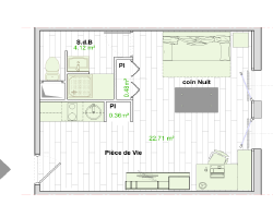
RARE - VENDU LOUE - 10MIN CAMPUS EN VOITURE OU BUS DIRECT CAMPUS & CENTRE-VILLE - PLACE DE PARKING Nous vous proposons ce spacieux studio de 28m2 situé au 1er étage d'une copropriété en bon état des années 75 dans un quartier résidentiel calme. Lumineux et très bien disposé, l'appartement se compose d'une entrée avec kitchenette, pièce de vie avec coin nuit et rangements, salle d'eau avec wc. Une place de parking en sous sol complète ce bien. Appartement vendu loué 351EUR + 73EUR soit 424EUR CC avec un bail jusqu'au 1er Juillet 2029
27.67 m²
2 295 €
1
1
1
1 sur 2
1975
Sud
Est
1
Oui (46 lots)
Consommations énergétiques
Logement économe
166
Logement énergivore (kWhEP/m2/an)
Émissions de gaz à effet de serre
Faible émission de GES
34
Forte émission de GES(kgeqCO2/m2/an)
Contact ROUQUET IMMOBILIER
Contacter gratuitement à l'aide du formulaire ci-dessous.