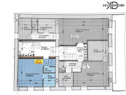
Kévin DUFOURD MarketPlace Immobilier vous propose un studio A RENOVER entièrement d'environ 25m² habitable au centre-ville de VALS LES BAINS.
L'appartement au 1er étage, est composé d'un séjour de 20m², une salle d'eau et un WC.
Il est proche de toutes les commodités que peut offrir la commune de VALS LES BAINS, idéal pour premier achat ou pour investisseur.
Je reste à votre disposition pour visiter et découvrir ce bien.
Le bien comprend 1 lot et il est situé dans une copropriété de 19 lots (les charges courantes annuelles moyennes de copropriété sont de 500 euros et le syndicat des copropriétaires ne fait pas l'objet d'une procédure citée à l'article L. 721-1 du code de la construction et de l'habitation).Contactez Kévin DUFOURD de MPI pour organiser une visite : TEL: 07.78.55.21.92 - EMAIL: kevin.d@mpi-immo.com - RSAC AUBENAS N° 791 454 366 Agent commercial indépendant du réseau national Marketplace Immobilier N° RSAC : 791454366
25 m²
1 400 €
2
1
1
1 sur 3
Contact SAS KD IMMO 07
Contacter gratuitement à l'aide du formulaire ci-dessous.