Studio de 17 m² à Aix-en-Provence - Résidence La Parade
Aix-en-Provence 13090
0
Bienvenue chez, l'agence familiale qui s'engage à un service d'exception. Découvrez une présentation soignée de ce bien : des photos pro, un plan détaillé et une visite virtuelle immersive pour vous projeter. Faites confiance à notre expertise pour transformer vos projets immobiliers en réussites remarquables.
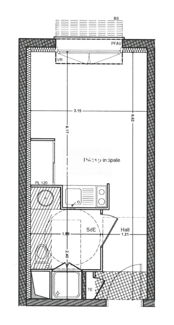
Nous vous proposons ce studio de 17,17 m² Carrez situé au 7e étage sur 9 d'une résidence avec ascenseur, sécurisée avec gardien et caméras de surveillance - Résidence la Parade.
Le bien est exposé Ouest et dispose d'une kitchenette, d'un espace nuit, d'une salle d'eau et d'un WC séparé.
Il est équipé d'une menuiserie aluminium double vitrage, d'un chauffe-eau de 100 L installé en 2024, ainsi que de la fibre optique. Le ravalement de façade a été réalisé en 2023. Les parties communes ont également été rénovées.
Stationnement libre au sein de la résidence.
Proche des facultés, des axes principaux et des zones d'activités du sud d'Aix.
Les + du bien :
- Proche des axes principaux et des facultés
- Résidence sécurisée
- Ascenseur
- Stationnement libre dans la résidence
- Travaux récents : menuiserie, chauffe-eau, ravalement de façade
A? noter :
- Etat du bien : bon état
- Fibre optique
- Eau de ville
- Tout à l'égout
- Taxe foncie?re : 432 € / an
Le bien est soumis au statut de coproprie?te? :
- Charges courantes annuelles : 1 001,16 € / an
- Pas de procédure en cours
- 190 lots dont 190 lots d'habitation
Performance énergétique :
- Consommation conventionnelle (kWhEP/m2.an) : 397 (E)
- Estimation des e?missions (kgCO2/m2.an) : 12 (B)
- Cou?t de l'e?nergie min / max : entre 590€ et 840€
- Anne?e de re?fe?rence des prix : 2021, 2022, 2023
- Logement a? consommation e?nerge?tique excessive.
Prix de vente : 95 000 € TTC (Honoraires a? la charge du vendeur).
Ce bien a retenu votre inte?re?t ? Pour organiser la visite avec nous, rien de plus simple, prenez rendez-vous en ligne au moment qui vous convient le mieux.
Les informations sur les risques auxquels ce bien est expose? sont disponibles sur le site Ge?orisques : www.georisques.gouv.fr.
Annonce rédigée sous la responsabilité éditoriale de, agent commercial (EI), immatriculé au RSAC de Salon-de-Provence sous le n° 850 335 530, sans détention de fonds, agissant pour le compte de la SARL immobilier, au capital de 5 000 €, immatriculée sous le SIREN n° 837 704 584, titulaire de la carte professionnelle n° CPI 7501 2018 000 025 842 délivrée par la CCI de Paris Île-de-France, dont le représentant légal est, ayant son siège social au 12 rue des Halles, 75001 Paris.
Bien présenté par Agences de France par délégation.
Agences de France ? SIREN : 899413603 ? Titulaire de la carte T : 29012021000000009 non habilité à percevoir des fonds
17 m²
5 588 €
1
1
7 sur 9
Ouest
Oui
Consommations énergétiques
Logement économe
397
Logement énergivore (kWhEP/m2/an)
Émissions de gaz à effet de serre
Faible émission de GES
12
Forte émission de GES(kgeqCO2/m2/an)
Contact Adrien. PIOT
Contacter gratuitement à l'aide du formulaire ci-dessous.