Honoraires à la charge de l'acquéreur (Prix hors honoraires : 55000 euros).
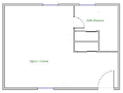
Votre conseillère Stéphanie Fortin Noovimo vous propose en EXCLUSIVITE: Située dans le centre de LEGE, à proximité immédiate de toutes commodités, ce studio de 27,18 m2. Au rez-de-chaussée, vous trouverez une pièce de vie de 22,19 m2 avec kitchenette et une salle d'eau avec WC. Le bien dispose également d'une cour en façade d'environ 10 m2, idéale pour profiter des beaux jours. Aucun travaux à prévoir, chauffage électrique et assainissement collectif. Son emplacement central, à deux pas de toutes les commodités, en fait un lieu de vie pratique et agréable, idéal pour un premier achat ou un investissement locatif. Legé est une commune de 4 700 habitants, dynamique et solidaire. Vous y trouverez les écoles élémentaires, primaires et collèges ainsi que diverses associations sportives, les commerces de proximité avec un centre commercial, les services de santé, un cinéma, une bibliothèque, une piscine, un parc public et un plan d'eau avec aire de pique-nique, parcours de randonnées, pêche,...- Situé à 40 minutes des plages et de Nantes, à 20 minutes de Challans et 25 minutes de la Roche sur Yon. Honoraires 4 800EURTTC et 55 000EUR (prix de vente honoraires exclus). Soit 59 800EUR honoraires inclus. Honoraires à la charge de l'acquéreur. Ref:25299.Votre agent indépendant Noovimo. Nos honoraires sont consultables sur www.noovimo.fr. Les informations sur les risques auxquels ce bien est exposé, sont disponibles sur le site Géorisques: http://www.georisques.gouv.fr - Annonce rédigée et publiée par un Agent Mandataire indépendant inscrit au RSAC sous le no843444357 - Annonce rédigée et publiée par un Agent Mandataire -
27.18 m²
2 200 €
1
1
1
8.73 %
52 € / mois
1900
Sud
Est
1
Oui
Consommations énergétiques
Logement économe
260
Logement énergivore (kWhEP/m2/an)
Émissions de gaz à effet de serre
Faible émission de GES
8
Forte émission de GES(kgeqCO2/m2/an)
Contact FORTIN Stephanie
Contacter gratuitement à l'aide du formulaire ci-dessous.