Studio de 28 m² avec ascenseur - Bérault - Avenue Franklin Roosevelt, Vincennes
Vincennes 94300
0
Hosman vous propose à la vente ce studio lumineux 28 m² situé au 6ème étage avec ascenseur d'un immeuble des années 50, au 38 Avenue Franklin Roosevelt à Vincennes. L'immeuble dispose d'un local à vélos.
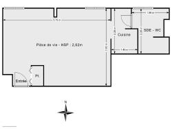
Le bien, qui profite d'une vue dégagée, est composé d'une entrée avec placards, d'une pièce principale de 21,92 m² orienté Nord-Ouest au calme sur cour avec une cuisine équipée de 2,63 m². La salle de bains dispose d'une douche, d'un WC et d'un emplacement pour la machine à laver.
Le chauffage et l'eau chaude sont fournis par un système collectif.
Les charges de copropriété s'élèvent à 345 € par trimestre.
La taxe foncière annuelle est de 1 002 €.
L'appartement est idéalement situé au coeur de Vincennes, à proximité de nombreux commerces, cafés et restaurants. Il est à quelques minutes à pied seulement du Bois de Vincennes et du Château de Vincennes. Côté transports, la station de métro Saint-Mandé (ligne 1) est accessible à pied en seulement 3 minutes, et la station de RER Vincennes (RER A) est à seulement 6 minutes à pied.
Le bien est soumis au statut de copropriété.
Planifiez facilement votre visite en choisissant le créneau qui vous convient depuis le site d'Hosman.
Hosman s'efforce de réinventer l'agence immobilière en offrant un service innovant et transparent aux acheteurs et aux vendeurs. Nos frais d'agence sont de 7 900 euros fixes à la charge du vendeur.
Si vous êtes un professionnel de l'immobilier (agent, mandataire ou chasseur immobilier), sachez que toutes les annonces Hosman sont ouvertes à la collaboration. N'hésitez pas à nous contacter pour en discuter.
28 m²
9 964 €
1
1
1
1
6 sur 7
Ouest
Nord
Oui
Oui
Consommations énergétiques
Logement économe
263
Logement énergivore (kWhEP/m2/an)
Émissions de gaz à effet de serre
Faible émission de GES
55
Forte émission de GES(kgeqCO2/m2/an)
Contact Claire Gervais
Contacter gratuitement à l'aide du formulaire ci-dessous.