Studio de 35m² avec chambre en mezzanine en plein coeur de
Paris 75004
0
Honoraires à la charge de l'acquéreur (Prix hors honoraires : 428000.00 euros).
Quai de Bourbon, Ile Saint-Louis, Quartier Notre-Dame !
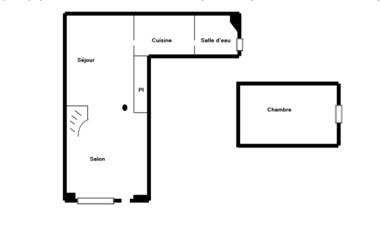
Niché au coeur de l'île Saint-Louis, au 1er étage sur cour d'un immeuble ancien, venez découvrir ce studio de 35m² en très bon état et composé ainsi : Une belle pièce principale comprenant un coin chambre en mezzanine, une cuisine indépendante aménagée et équipée, et une salle de bains avec wc. Belle hauteur sous plafond, poutres apparentes, bcp de charme.
Vous serez séduits par le calme du bien et par sa localisation exceptionnelle !
Métro Pont-Marie (ligne 7) à 200 mètres, Eglise Notre-Dame à 500 mètres. Commerces de proximité aux alentours.
Classe énergétique: E Fenêtres en double vitrage. Chauffage individuel électrique.
A visiter rapidement !
Les informations sur les risques auxquels ce bien est exposé sont disponibles sur le site Géorisques : www.georisques.gouv.fr
35.26 m²
12 734 €
24 m²
1
1
1 sur 4
4.91 %
65.00 € / mois
1770
Oui
Oui
Oui
Oui
Consommations énergétiques
Logement économe
324
Logement énergivore (kWhEP/m2/an)
Émissions de gaz à effet de serre
Faible émission de GES
10
Forte émission de GES(kgeqCO2/m2/an)
Contact Robin SOULIER
Contacter gratuitement à l'aide du formulaire ci-dessous.