Studio en résidence étudiante - spécial investisseur
Saint-Herblain 44800
0
Honoraires à la charge de l'acquéreur (Prix hors honoraires : 57000 euros).
Les charges de location sont prévisionnelles mensuelles avec régularisation annuelle.
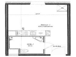
Situé au 4? étage d'une résidence de 2013, ce studio comprend une entrée, une pièce de vie avec kitchenette et placard, ainsi qu'une salle de bain avec WC.
Actuellement loué dans le cadre d'un bail commercial pour locaux meublés, il génère un loyer de 340,88 TTC par mois.
Vendu actuellement occupé.
Uniquement pour investisseurs !
Honoraires inclus de 7.02% TTC à la charge de l'acquéreur. Prix hors honoraires 57 000 . Dans une copropriété de 120 lots. Quote-part moyenne du budget prévisionnel 400 /an. Aucune procédure n'est en cours. Classe énergie B, Classe climat B Montant estimé des dépenses annuelles d'énergie pour un usage standard : entre 170.00 et 280.00 sur les années 2021, 2022 et 2023 (abonnements compris). Les informations sur les risques auxquels ce bien est exposé sont disponibles sur le site Géorisques : georisques.gouv.fr.