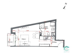
À deux pas du métro Saint-Agne, des commerces et de toutes les commodités, ce T1 de 30 m² offre un espace de vie fonctionnel et pratique, idéal pour un étudiant ou un jeune actif.
Situé au 1er étage d'une résidence sécurisée récemment rafraîchie, l'appartement dispose d'une pièce de vie spacieuse exposée ouest, d'un coin kitchenette, d'une salle d'eau avec WC et d'un balcon, apportant un agréable espace extérieur.
Atouts du bien : Volume intérieur confortable pour un T1 Résidence entretenue et sécurisée Emplacement stratégique : métro, commerces et centre-ville accessibles rapidement Informations financières :Charges de copropriété : 1 165 / an Taxe foncière : 637 Un bien fonctionnel et bien situé, parfait pour un premier achat ou un investissement locatif sur Toulouse.
Contactez-nous pour plus d'informations ou pour organiser une visite.
Honoraires à la charge du vendeur. Dans une copropriété de 20 lots. Aucune procédure n'est en cours. Classe énergie C, Classe climat C Montant moyen estimé des dépenses annuelles d'énergie pour un usage standard, établi à partir des prix de l'énergie de l'année 2015 : entre 1.00 et 791.00 . Les informations sur les risques auxquels ce bien est exposé sont disponibles sur le site Géorisques : georisques.gouv.fr.
30.1 m²
4 203 €
3 m²
18 m²
1
1
1 sur 2
2014
1 (3 m²)
Oui (20 lots)
Consommations énergétiques
Logement économe
111
Logement énergivore (kWhEP/m2/an)
Émissions de gaz à effet de serre
Faible émission de GES
20
Forte émission de GES(kgeqCO2/m2/an)
Contact C2i SUD OUEST
Contacter gratuitement à l'aide du formulaire ci-dessous.