Dans une résidence sécurisée et idéalement située ;
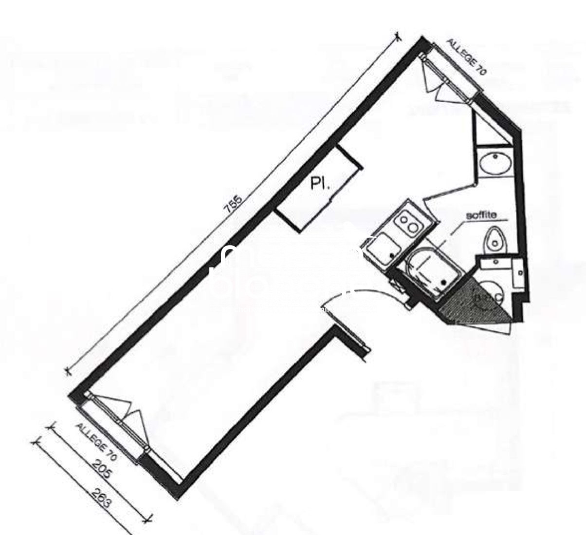
Studio de (26,4) m2 lumineux avec grande terrasse privative en rez-de-chaussée.
Composé d'une entrée avec coin cuisine, un salon ainsi qu'une salle de bain avec wc.
Vendu avec une place de parking.
GARE RER DE MEAUX À 5 MINUTES À PIED !
- Chauffage individuel
- Faible taxe foncière (780 euros / an).
- Faible charges de copropriété (57 euros / mois).
- Eau froide incluse dans les charges.
Cet appartement était loué 570 euros / mois.
Cette annonce référence 309620 vous est présentée par votre agent commercial BSK Immobilier ANTHONY DELY (EI) immatriculé au RSAC de MEAUX (77100) sous le numéro 90229959300019.
Prix du bien : 109 000,00 €
Les honoraires d'agence sont à la charge du vendeur.
A propos de la copropriété :
Pas de procédure en cours.
Nombre de lots : 48
Charges prévisionnelles annuelles : 675,00 €
A propos des performances énergétiques :
Date de réalisation du diagnostic énergétique : 28/07/2025
Score DPE : 369 kWhEP/m²/an
Score GES : 11 kgepCO2/m²/an
Montant estimé des dépenses annuelles d'énergie pour un usage standard : entre 850.00 € et 1180.00 € par an. Prix moyens des énergies indexés sur l'année 2025 (abonnements compris).
Les informations sur les risques auxquels ce bien est exposé sont disponibles sur le site Géorisques : www.georisques.gouv.fr
26 m²
4 192 €
1
1
1
1995
Oui
Consommations énergétiques
Logement économe
369
Logement énergivore (kWhEP/m2/an)
Émissions de gaz à effet de serre
Faible émission de GES
11
Forte émission de GES(kgeqCO2/m2/an)
Contact Iad France - Anthony DÉLY
Contacter gratuitement à l'aide du formulaire ci-dessous.