Studio Lumineux avec Accès Rooftop Issy-les-Moulineaux, Pr
Issy-les-Moulineaux 92130
0
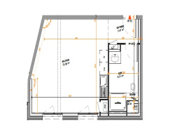
Découvrez votre futur cocon au coeur d'Issy-les-Moulineaux ! Appartement neuf de 32 m2 (loi Carrez) allie luminosité, fonctionnalité et élégance. Idéalement situé à deux pas des transports (Métro 12, RER C, Tram T2) et des commodités, ce bien est une pépite - Séjour spacieux de 23,36 m2 baigné de lumière naturelle, ouvert sur une cuisine équipée, - Salle de bain moderne (6,31 m2) avec douche à l'italienne et WC suspendu - Entrée avec espace de rangement - Accès à la grande terrasse commune (rooftop) - Local à vélos Proximité immédiate des bords de Seine, du parc Henri Barbusse et de l'île Saint-Germain. Éco-quartiers modernes (Issy Coeur de Ville, Fort d'Issy) et transports en commun à moins de 5 minutes à pied (Défense en 30 min, Porte de Versailles en 10 min) Commerces, écoles, crèches et équipements sportifs à proximité Contactez-nous dès maintenant pour une visite ou plus d'informations Pas de frais d'agence Frais de notaire réduits TVA à 5,5% possible Photos non-contractuelles
32 m²
9 313 €
1
1
1
Oui
Oui (53 lots)
Consommations énergétiques
Logement économe
71
Logement énergivore (kWhEP/m2/an)
Émissions de gaz à effet de serre
Faible émission de GES
10
Forte émission de GES(kgeqCO2/m2/an)
Contact AMAR Denis
Contacter gratuitement à l'aide du formulaire ci-dessous.