Studio lumineux en centre-ville ? Salon-de-Provence
Salon-de-Provence 13300
0
Bienvenue chez, l'agence familiale qui s'engage à un service d'exception. Découvrez une présentation soignée de ce bien : des photos pro, un plan détaillé et une visite virtuelle immersive pour vous projeter. Faites confiance à notre expertise pour transformer vos projets immobiliers en réussites remarquables.
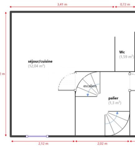
Studio de 16,93 m², idéalement situé en plein c?ur de Salon-de-Provence (13300), à proximité immédiate du Château de l'Empéri et de toutes les commodités.
L'appartement se compose d'une pièce de vie lumineuse avec cuisine aménagée et équipée, ainsi qu'une salle d'eau avec WC intégré.
Parfait pour un investissement locatif, un étudiant, ou comme pied-à-terre, ce bien offre un emplacement central dans un quartier vivant et recherché.
Les + du bien :
- Toutes commodités à pied
- Luminosité
- PVC double vitrage
- Interphone
- Rendement locatif immédiat
A noter :
- Etat du bien : bon état
- Eau de ville
- Tout à l'égout
- Taxe foncie?re : 527 €/ an
Le bien est soumis au statut de coproprie?te? :
- 52 lots dont 52 lots d'habitation
- Pas de procédure en cours
- Charges courantes annuelles : 619,40 € / an
Performance énergétique :
- Consommation conventionnelle (kWhEP/m2.an) : 204 (C)
- Estimation des e?missions (kg CO2/m2.an) : 5 (A)
- Cou?t de l'e?nergie min / max : entre 350 € et 530 € / an
- Anne?e de re?fe?rence des prix : 2021
Prix de vente : 85 000 € TTC (Honoraires à la charge du vendeur*)
Ce bien a retenu votre inte?re?t ? Pour organiser la visite avec nous, rien de plus simple, prenez rendez-vous en ligne au moment qui vous convient le mieux.
Les informations sur les risques auxquels ce bien est expose? sont disponibles sur le site Ge?orisques : www.georisques.gouv.fr
Ce bien n'est potentiellement pas concerne? par un tel risque.
La pre?sente annonce immobilie?re a e?te? re?dige?e sous la responsabilite? e?ditoriale d'
Bien présenté par Agences de France par délégation.
Agences de France ? SIREN : 899413603 ? Titulaire de la carte T : 29012021000000009 non habilité à percevoir des fonds
16 m²
5 313 €
1
1
1
1 sur 2
Consommations énergétiques
Logement économe
204
Logement énergivore (kWhEP/m2/an)
Émissions de gaz à effet de serre
Faible émission de GES
5
Forte émission de GES(kgeqCO2/m2/an)
Contact Adrien. PIOT
Contacter gratuitement à l'aide du formulaire ci-dessous.