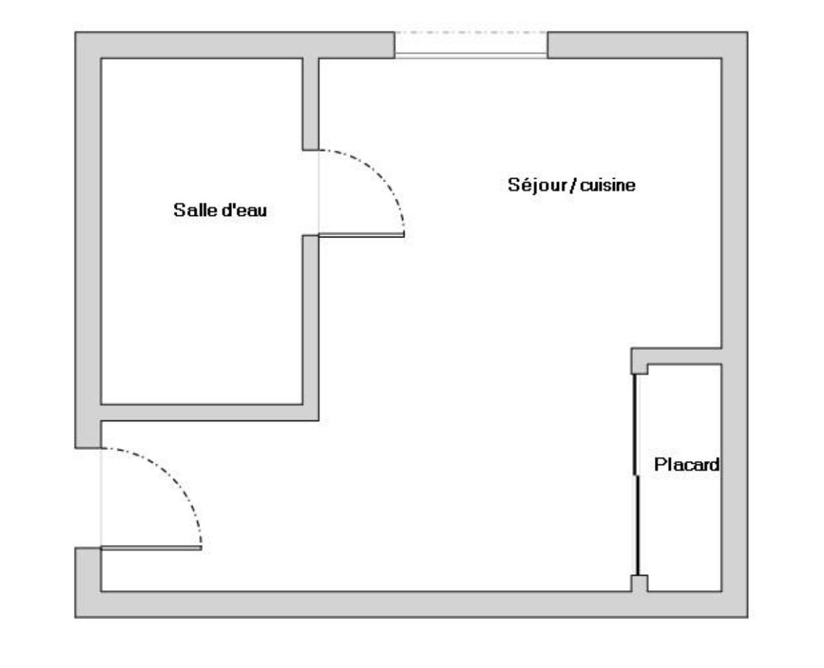
Quartier WAGRAM , Rue Ampère, dans bel immeuble de standing, studio mansardé au 6ème étage sans ascenseur composé d'une pièce unique avec coin cuisine et douche, WC sur palier.
Parmi les prestations / éléments techniques : Chauffage individuel électrique Grande fenêtre de toit Plus de photos disponibles sur notre site internet ! www.immohorizon.fr
************************************ Contact: Jean-Pierre MAURICE 06/15/65/48/02 ou fixe de l'agence 04/ 74/ 65/ 54/ 72
Honoraires à la charge du vendeur. Dans une copropriété de 1 lots. Aucune procédure n'est en cours. Classe énergie G, Classe climat C Logement à consommation énergétique excessive. Montant moyen estimé des dépenses annuelles d'énergie pour un usage standard, établi à partir des prix de l'énergie de l'année 2021 : entre 900.00 et 1590.00 . Les informations sur les risques auxquels ce bien est exposé sont disponibles sur le site Géorisques : georisques.gouv.fr.
Votre conseiller Horizon Immobilier : Jean-Pierre MAURICE Agent commercial (Entreprise individuelle) RSAC 437 790 165 RCP AXA. Horizon Immobilier Nicolas MOCK, 0631538456 - Informations Loi Alur : Statut salarié Mael MINOT, 0660383772 - Responsabilité Civile Professionnelle n° AIG EUROPE: RD01377004G Informations Loi Alur : Statut négociateur RSAC: 893 487 397 immatriculé à VILLEFRANCHE-SUR- SAONE SIRET: 893 487 397 00018 Les informations sur les risques auxquels le bien est exposé sont disponibles sur le site géorisques : www.georisques.gouv.fr Horizon Immobilier, 180 Rue du Centre, 01140 ST. DIDIER SUR CHALARONNE RCS Bourg en Bresse 888 579 596 - Carte Professionnelle Transaction n° CPI01012020000045054 CCI de Bourg en Bresse Code APE 6831Z-Non détention de fonds - TVA : FR29888579596 - Assurance RCP : QBE Europe SA/NV 2020IM00317 - RCS de Nanterre 842 689 556
9 m²
12 222 €
1
Oui
Oui (1 lots)
Consommations énergétiques
Logement économe
690
Logement énergivore (kWhEP/m2/an)
Émissions de gaz à effet de serre
Faible émission de GES
40
Forte émission de GES(kgeqCO2/m2/an)
Contact Jean-Pierre MAURICE
Contacter gratuitement à l'aide du formulaire ci-dessous.