STUDIO MEUBLE VENDU LOUE DANS RESIDENCE ETUDIANTE SECURISEE
Valenciennes 59300
0
Honoraires à la charge de l'acquéreur (Prix hors honoraires : 48000 euros).
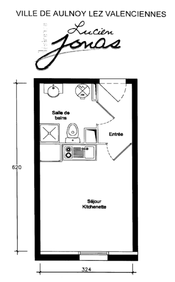
WATREMEZ immobilier, vous propose en exclusivité, ce magnifique studio meublé de 19 m2 situé au 2e étage avec ascenseur dans une résidence étudiante. Il se compose d'une entrée, une pièce principale avec lit simple, commode, table et chaises ainsi qu'une kitchenette composée d'un micro-ondes, plaque de cuisson et réfrigérateur et une salle d'eau privative avec WC. A seulement 8 minutes du pôle universitaire et à proximité immédiate des transports en commun dont le tramway, il profite d'un emplacement stratégique garantissant une forte attractivité auprès des étudiants. Le studio est vendu loué dans le cadre d'un investissement LMNP, exploité sous bail commercial et géré par LOGIFAC, garantissant un loyer sécurisé toute l'année même en cas de vacance locative, sans contrainte de gestion. La copropriété composée de 355 lots et sans procédure en cours, propose des espaces communs comme une salle de sport, salle de travail et de TV, salle de jeux et buanderie Loyer annuel : 3053 TTC Charges annuelles : 210 Taxe foncière : 392.
Pour plus de renseignements et visites : LOGAN COLLERY
Honoraires inclus de 9.38% TTC à la charge de l'acquéreur. Prix hors honoraires 48 000 . Dans une copropriété de 355 lots. Aucune procédure n'est en cours. Classe énergie C, Classe climat A Montant moyen estimé des dépenses annuelles d'énergie pour un usage standard, établi à partir des prix de l'énergie de l'année 2021 : entre 318.00 et 431.00 . Les informations sur les risques auxquels ce bien est exposé sont disponibles sur le site Géorisques : georisques.gouv.fr.