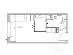
Découvrez ce studio de 22,40 m², entièrement neuf, offrant un cadre moderne et confortable. Situé dans une résidence récente et sécurisée, il bénéficie d'un agencement optimisé grâce à une alcôve permettant de créer facilement un espace nuit distinct.
Caractéristiques du logement :
- Studio de 22,40 m² (non meublé) - Exposition Ouest - Situé au 2ème étage avec ascenseur - Alcôve pratique pour délimiter les espaces - Pièce de vie lumineuse avec grande ouverture - Coin cuisine - Salle d'eau - Rangements prévus pour optimiser l'espace - Chauffage collectif au gaz et matériaux récents garantissant une faible consommation
Atouts supplémentaires :
- Résidence calme et sécurisée - Proximité immédiate des commerces, transports et services - Construction neuve aux normes actuelles RE2020 (isolation, confort acoustique, énergie)
Ce studio est parfait pour une personne seule ou un jeune actif souhaitant profiter d'un logement récent, fonctionnel et bien situé.
Photos non contractuelles !
N'hésitez pas à me contacter pour plus d'informations ou pour organiser une visite.
Camille Maurouard
Honoraires à la charge du vendeur. Dans une copropriété de 84 lots. Aucune procédure n'est en cours. DPE vierge. Les informations sur les risques auxquels ce bien est exposé sont disponibles sur le site Géorisques : georisques.gouv.fr.