Honoraires à la charge de l'acquéreur (Prix hors honoraires : 119793 euros).
TOULOUSE / SAINT-AUBIN / HYPER CENTRE
Entre Canal du Midi et centre-ville Emplacement d'exception à deux pas de Matabiau
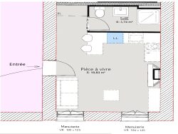
Découvrez ce studio de 24m2 en rez-de-chaussée avec vue sur Canal du midi, au coeur d'un projet unique de rénovation complète d'un immeuble de style toulousain situé boulevard de la Gare, à proximité immédiate du Canal du Midi, des Ramblas et du quartier Saint-Aubin.
Un emplacement stratégique Sa localisation, proche du métro et de la gare Matabiau, en fait un secteur prisé et en pleine transformation, porté par le projet urbain Grand Matabiau et la future Tour Occitanie. Un emplacement idéal, que ce soit pour y vivre ou investir.
Des travaux de rénovation complets et qualitatifs
Le programme prévoit une rénovation intégrale dans le respect du style architectural toulousain et aux normes énergétiques RT. L'ensemble vise à garantir confort, performance et économies d'énergie tout en offrant un cadre de vie convivial et intimiste autour d'une cour commune.
Rénovation énergétique : Pose de climatisations réversibles dans le séjour et sèche-serviettes dans la salle de bain Installation d'un chauffe-eau électrique performant Pose de VMC hygroréglables Double vitrage performant sur les menuiseries extérieures Aménagement intérieur : Cuisine équipée ou kitchenette (selon typologie du logement) Salle d'eau et WC refaits à neuf : receveur de douche, meuble vasque, WC, faïence Revêtements de sol stratifiés ou carrelage/PVC selon les pièces Peintures intégrales murs et plafonds Électricité remise aux normes Révision de la toiture Parties communes rénovées : sols, peinture, éclairages Conservation et finitions : Peinture des portes et placards existants Conservation des portes d'entrée et volets roulants PVC si en bon état Les atouts du projet Emplacement stratégique : boulevard de la Gare, à proximité du métro et de la gare Matabiau Cadre attractif : Canal du Midi, Ramblas et quartier Saint-Aubin accessibles à pied Secteur en plein essor : valorisation à venir grâce au projet Grand Matabiau et à la Tour Occitanie Opération sécurisée : assurance dommage-ouvrage et garantie financière d'achèvement Conditions de vente
Possibilité d'acquérir le bien brut (sans travaux intérieurs) pour un montant de 101 480 FAI. Une opportunité rare d'investir dans un secteur central, à fort potentiel locatif et patrimonial, avec la flexibilité de réaliser ou non les aménagements intérieurs selon vos besoins.
Honoraires inclus de 6.38% TTC à la charge de l'acquéreur. Prix hors honoraires 119 793 . Dans une copropriété de 18 lots. Aucune procédure n'est en cours. Non soumis au DPE. Les informations sur les risques auxquels ce bien est exposé sont disponibles sur le site Géorisques : georisques.gouv.fr.
24 m²
5 310 €
1
1
1
6.38 %
Oui (18 lots)
Contact AGENCE DU TAUR
Contacter gratuitement à l'aide du formulaire ci-dessous.