SPÉCIAL INVESTISSEUR Studio lumineux de 35,36 m²
Découvrez ce beau studio de 35,36 m², situé au 1er étage d'un bâtiment historique, sans travaux, avec stationnement, à 6 minutes à pied de la gare. Ce bien est déjà loué, et ne nécessite aucun travaux !
EN QUELQUES CHIFFRES - Rendement brut : 5,9% - Loyer actuel : 490/mois en location meublée - Taxe foncière : 822/an taxe d'enlèvement des ordures ménagères déduite - Charges de copropriété : 24,24/mois quote-part investisseur - Travaux : aucun à prévoir appartement et copropriété en bon état
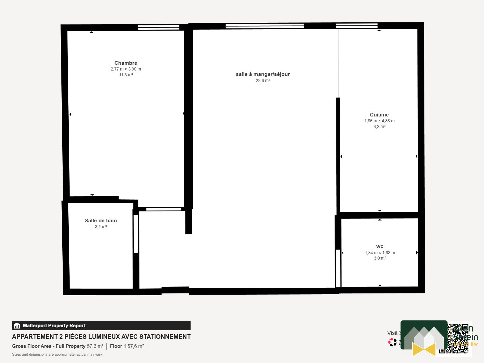
DESCRIPTION DU BIEN - Superficie totale : 35,36m² - Cuisine aménagée et équipée, fonctionnelle et bien agencée - Salon-séjour avec coin nuit - Salle d'eau avec WC
COTE CONFORT - Chauffage individuel électrique - Fibre optique - Petite copropriété, bien entretenue
EMPLACEMENT - Arrêt de bus à 5 min à pied - Proche de la gare - À moins de 10 min à pied : écoles, commerces, restaurants, médecins, parc - Quartier agréable, bien desservi et recherché par les locataires
Contactez votre agent au Noeud Pap' pour organiser une visite ! Découvrez nos autres biens dédiés à l'investissement locatif sur notre site, dans l'onglet « Investir ».
Honoraires à la charge du vendeur. Dans une copropriété de 68 lots. Quote-part moyenne du budget prévisionnel 683 /an. Aucune procédure n'est en cours. Classe énergie D, Classe climat B Montant moyen estimé des dépenses annuelles d'énergie pour un usage standard, établi à partir des prix de l'énergie de l'année 2021 : entre 880.00 et 1220.00 . Les informations sur les risques auxquels ce bien est exposé sont disponibles sur le site Géorisques : georisques.gouv.fr.
35.36 m²
2 825 €
19 m²
1
1
1
1 sur 2
56.89 € / mois
1940
1
Oui (68 lots)
Consommations énergétiques
Logement économe
239
Logement énergivore (kWhEP/m2/an)
Émissions de gaz à effet de serre
Faible émission de GES
9
Forte émission de GES(kgeqCO2/m2/an)
Contact Haris TUFEKOVIC
Contacter gratuitement à l'aide du formulaire ci-dessous.