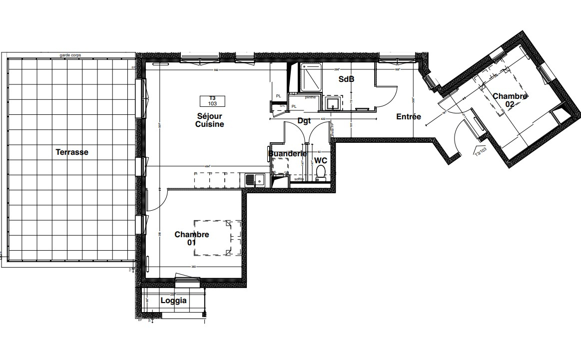
En limite de Neuville-sur-Saône, à Genay (69730) : venez découvrir dans un cadre chargé d'histoire, au sein d'un ancien couvent datant de 1708 reconverti en petite copropriété de charme (5 lots), ce sublime T4 de 114 m2, entièrement rénové avec soin et goût. Une exclusivité PATTYN IMMOBILIER. Situé au 1er étage, cet appartement lumineux marie avec élégance le cachet de l'ancien et le confort moderne. Vous serez séduit par ses prestations authentiques : plafond rustique, grandes fenêtres bois à volets intérieurs bois avec espagnolettes, dallage en pierre de Bourgogne dans le salon, parquet dans les autres pièces, une cheminée en pierre décorative et sa salle de bains et sa cuisine modernes. La disposition intérieure offre de beaux volumes : - Salon-séjour lumineux de 43 m2, - Salle à manger avec cuisine ouverte de 32 m2, - Trois chambres de 11, 10,9 et 9 m2 avec un dressing en plus, - Salle de bain avec WC, et mini buanderie. Les atouts complémentaires : - Une place de stationnement, - Une cave en sous-sol (quote-part de 4/20), - Un grenier privatif de 4 m2 et un espace vélo et moto partagé situés dans une dépendance extérieure - Un jardin commun arboré, avec son espace aménagé d'une table, de chaises et d'un barbecue. Les points forts : - Charme de l'ancien, - Environnement calme et paisible, - Double exposition Sud et Ouest pour une luminosité optimale - Résidence bien entretenue et agréable à vivre. - Proximité du centre de Genay et aussi de Neuville-sur-Saône avec leurs commerces et zone commerciale, leurs écoles et transports (bus et gare TER), - Accès rapide à l'A46 (Lyon ou Villefranche à 5 min en voiture), DPE : Classe énergétique D / GES : D - Estimation des coûts annuels d'énergie : entre 2120 EUR et 2920 EUR sur les années 2021, 2022 et 2023 (abonnements compris). Taxe foncière 2025 : 810 EUR - Chauffage individuel au gaz (chaudière + radiateurs) - Charges annuelles de copropriétés : 88 EUR par mois incluant l'entretien des parties communes, des espaces verts, assurance, eau froide pour le jardin et électricité des parties communes. Un bien rare sur le secteur, idéal pour une famille à la recherche d'un lieu de vie unique, ou comme pied-à-terre de charme pour découvrir la région lyonnaise, entre Beaujolais et Dombes, à seulement 30 minutes de Lyon. Ne manquez pas cette opportunité ! Contactez-moi pour une visite au 06.78.45.22.38. Prix de vente : 371 000 EUR (honoraires à la charge du vendeur).
PATTYN IMMOBILIER - 'L'immobilier en toute sérénité' . Mandat no 88222 Agent commercial EI (RSAC No 852578087 Bourg-en-Bresse) - Réseau EXPERTIMO - 1 place Alexandre Farnèse 84000 Avignon RCS Avignon B 524 084 704 CPI Cette annonce vous est proposée par PATTYN Anne-Pascale - EI - NoRSAC: 852 578 087, Enregistré à Greffe du tribunal de commerce de Bourg-en-Bresse Les informations sur les risques auxquels ce bien est exposé sont disponibles sur le site Géorisques : www.georisques.gouv.fr - Annonce rédigée et publiée par un Agent Mandataire -
114 m²
3 254 €
43 m²
4
3
1
1
1 sur 2
88 € / mois
1708
Sud
Ouest
Oui
1
Oui
Oui
Consommations énergétiques
Logement économe
205
Logement énergivore (kWhEP/m2/an)
Émissions de gaz à effet de serre
Faible émission de GES
40
Forte émission de GES(kgeqCO2/m2/an)
Contact Anne-Pascale PATTYN
Contacter gratuitement à l'aide du formulaire ci-dessous.