Superbe 2 Pièces refait à neuf avec balcon. Exclusivité
Gagny 93220
0
Honoraires à la charge de l'acquéreur (Prix hors honoraires : 180000 euros).
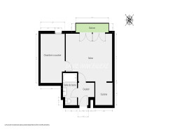
Appartement 2 Pièces spacieux et lumineux, Vendu Occupé de 45,05 m². Situé au deuxième étage d'un immeuble de trois étages, cet appartement bénéficie d'un ascenseur pour un accès facile et pratique. Un séjour d'une superficie de 25 m², Lumineux donnant sur un balcon de 3m², la cuisine américaine, aménagée et équipée, est un véritable atout pour les amateurs de cuisine, permettant de cuisiner tout en profitant de la convivialité du séjour, une chambre spacieuse, une salle de bains et un WC. Exposition nord-ouest. Pas de vis-à-vis. L'appartement est en excellent état, tant à l'intérieur qu'au niveau des parties communes, et dispose d'un chauffage individuel pour un confort optimal. Un Emplacement de parking intérieur est également inclus, offrant une solution pratique pour garer votre véhicule en toute sécurité. Imaginez-vous rentrer chez vous après une journée bien remplie, vous détendre dans ce cocon douillet, et profiter de chaque instant dans cet appartement qui allie fonctionnalité et esthétique. Cet appartement est bien plus qu'un simple logement, c'est un véritable havre de paix où chaque détail a été pensé pour votre bien-être. À proximité, vous trouverez plusieurs commodités pratiques : plusieurs commerces d'alimentation générale, restaurants, et médecins généralistes à 10 minutes à pied, ainsi qu'un parc et jardin à 10 minutes à pied. Un hôpital et un tramway sont accessibles en 10 minutes en voiture.
Honoraires inclus de 5.28% TTC à la charge de l'acquéreur. Prix hors honoraires 180 000 . Dans une copropriété de 50 lots. Quote-part moyenne du budget prévisionnel 1 344 /an. Aucune procédure n'est en cours. Classe énergie C, Classe climat A Montant estimé des dépenses annuelles d'énergie pour un usage standard : entre 630.00 et 910.00 sur les années 2021, 2022 et 2023 (abonnements compris). Les informations sur les risques auxquels ce bien est exposé sont disponibles sur le site Géorisques : georisques.gouv.fr.
45.05 m²
4 206 €
3 m²
25 m²
2
1
1
1
2 sur 3
5.28 %
112.00 € / mois
2006
Ouest
Nord
1 (3 m²)
Oui
1
Oui (50 lots)
Consommations énergétiques
Logement économe
165
Logement énergivore (kWhEP/m2/an)
Émissions de gaz à effet de serre
Faible émission de GES
5
Forte émission de GES(kgeqCO2/m2/an)
Contact LA VIE IMMOBILIERE
Contacter gratuitement à l'aide du formulaire ci-dessous.