Superbe 4 pièces avec grande terrasse de 15m2 - Bussy Saint
Bussy-Saint-Georges 77600
0
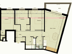
Découvrez ce magnifique appartement de 4 pièces de 82 m2, idéalement situé au dans le nouveau quartier Sycomore à Bussy Saint-Georges. Ce bien, baigné de lumière grâce à ses grandes baies vitrées, offre un cadre de vie exceptionnel et des prestations de qualité. Le coeur de cet appartement est son espace de vie: - séjour avec cuisine ouverte- de plus de 35 m2. Cet espace s'ouvre directement sur un grand balcon de près de 15m2, véritable extension de votre salon pour profiter des beaux jours. La cuisine est aménageable selon vos goûts, vous permettant de créer l'espace culinaire de vos rêves. Un coin nuit fonctionnel et confortable : L'espace nuit se compose de 3 chambres dont 1 donnant sur la terrasse Une salle de bains moderne et des WC séparés complètent cet espace. 2 places de parking complètent ce bien Bussy Saint-Georges : une qualité de vie privilégiée : Situé dans un quartier calme et verdoyant, cet appartement vous offre la tranquillité tout en étant proche de toutes les commodités. Vous profiterez de la proximité du golf, des nombreux espaces verts de la 'ville verte', ainsi que des commerces, écoles et équipements sportifs et culturels. La gare RER A est facilement accessible, vous permettant de rejoindre Paris rapidement. Contactez-nous dès aujourd'hui pour obtenir plus d'informations Pas de frais d'agence - Frais de notaires réduits - Photo non-contractuelles
82 m²
4 877 €
4
3
1
1
2
1 sur 2
2
1
Consommations énergétiques
Logement économe
71
Logement énergivore (kWhEP/m2/an)
Émissions de gaz à effet de serre
Faible émission de GES
10
Forte émission de GES(kgeqCO2/m2/an)
Contact AMAR Denis
Contacter gratuitement à l'aide du formulaire ci-dessous.