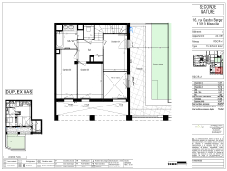
5 Duplex de 111 m² avec Jardin - 10ème Arrondissement de Marseille Vivez l'élégance et le confort dans ce magnifique duplex T5 de 111 m², situé en rez-de-chaussée et R+1, au sein d'une résidence paysagée au coeur du 10ème arrondissement de Marseille. Dès l'entrée, vous serez séduit par un spacieux séjour-cuisine de 32 m², baigné de lumière, donnant sur une terrasse de 14 m² et un jardin privatif de 24 m², un véritable écrin de verdure pour vos moments de détente. Le rez-de-chaussée accueille également une suite parentale avec salle d'eau privative, ainsi qu'un WC indépendant. A l'étage, vous découvrirez un espace nuit composé de 3 chambres lumineuses, une salle de bain moderne, et un WC séparé pour plus de confort. Idéalement situé, cet appartement vous place à deux pas des commerces et des transports en commun, et à seulement 10 minutes en voiture des établissements scolaires de tous niveaux. Deux places de parking en sous-sol sont disponibles en supplément pour 24 000 euros. Informations complémentaires : Bâtiment basse consommation (BBC) Faibles charges Visuel non contractuel A visiter ! Ce bien rare vous offre un cadre de vie exceptionnel au sein d'une résidence moderne et verdoyante. Une opportunité unique à saisir rapidement ! Copropriété de 25 lots - dont 25 lots habitation.