Superbe appartement familial de 281 m2 à proximité immédiate
Paris 75016
0
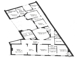
Appartement de réception haussmannien 281 m2 Adresse prisée Situé au 1er étage, seul sur le palier, d'un superbe immeuble haussmannien sécurisé avec gardienne, cet appartement d'exception de 281 m2 séduit par ses volumes remarquables, son plan familial idéal et la richesse de ses éléments d'époque. Dès l'entrée, une vaste galerie distribue avec élégance les espaces de réception : un double séjour lumineux, sublimé par de magnifiques moulures, cheminées et un parquet en point de Hongrie, ainsi qu'une grande salle à manger attenante à une cuisine dinatoire avec office. La partie nuit, parfaitement organisée, comprend quatre chambres :
une première suite avec salle de bains, douche et toilettes,
une deuxième chambre avec dressing et toilettes,
une troisième chambre,
une salle de douche avec toilettes,
et une quatrième chambre avec salle de bains et toilettes, formant un studio indépendant, également accessible par l'escalier de service.
L'appartement bénéficie d'une belle hauteur sous plafond de 3,30 mètres , d'une adresse recherchée et d'un cachet rare, offrant un cadre de vie prestigieux et familial. Deux chambres de service, d'une superficie de 13 m2 et 9 m2, équipées respectivement d'une douche et d'une cuisine, sont proposées en supplément au prix de 220 000 EUR. Deux caves complètent ce bien rare à rénover, offrant un potentiel exceptionnel dans l'un des quartiers les plus recherchés de la capitale.
281.35 m²
10 627 €
50 m²
8
4
2
2
1 sur 8
1150 € / mois
1860
Est
Oui
Oui
Oui
Oui
Oui
Oui (50 lots)
Consommations énergétiques
Logement économe
286
Logement énergivore (kWhEP/m2/an)
Émissions de gaz à effet de serre
Faible émission de GES
63
Forte émission de GES(kgeqCO2/m2/an)
Contact CMB
Contacter gratuitement à l'aide du formulaire ci-dessous.