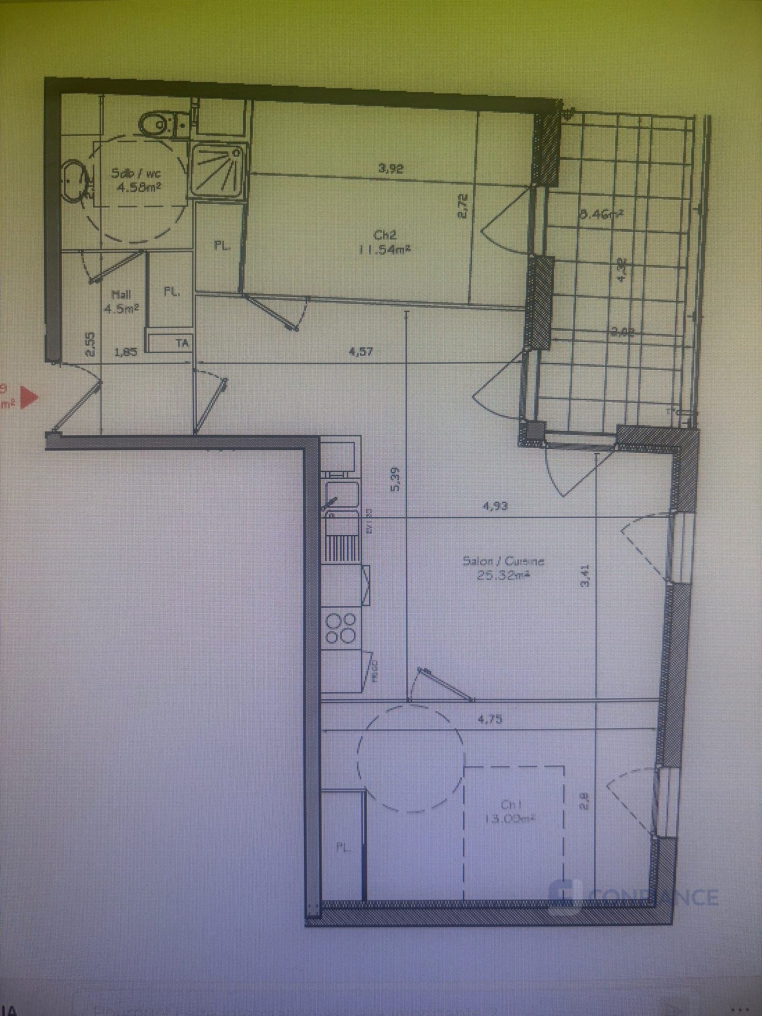
Découvrez ce superbe appartement situé à Montélimar, au coeur de la copropriété Le Bel Air, à deux pas du centre-ville, parfaitement préservé des nuisances, résidence privée dotée d'un vaste parc privatif verdoyant. Ce spacieux F2, anciennement un F3, offre environ 57.19 m² de surface au sol et 55,33 m² en loi Carrez. Installé au premier étage et demi d'un immeuble bien entretenu, il bénéficie d'une sécurité grâce à un portail motorisé donnant accès à un parking privé commun ainsi qu'à un contrôle sécurisé des parties communes intérieures.
Laissez-vous séduire par ce logement rénové avec soin comprenant une entrée avec rangements, une grande pièce de vie lumineuse de plus de 25 m² s'ouvrant sur un balcon exposé plein sud. La cuisine indépendante est entièrement aménagée et équipée (plaque, four, hotte, lave-vaisselle), agrémentée d'un espace buanderie / cellier pour votre confort.
Vous profiterez également d'une belle chambre avec rangement, d'une salle d'eau moderne avec douche spacieuse, de toilettes séparées et d'un débarras fonctionnel.
Envie d'une chambre supplémentaire ? Transformez votre logement en F3 en intégrant le salon dans cet aménagement astucieux !
Les menuiseries en PVC double vitrage sont partiellement équipées de moustiquaires et toutes dotées de volets roulants solaires. Une cave privative complète ce bien.
Vous avez également la possibilité de conserver les meubles du logement inclus dans le prix de vente !
Situé dans un environnement calme donnant sur des parcs verdoyants et proche immédiate de toutes les commodités, cet appartement est en excellent état. Une opportunité rare à saisir sans tarder !
PRIX DE VENTE : 127 000 TTC honoraires charge vendeurs
Votre contact Perrine Chapus Faure au 06.10.62.16.16
DPE : CLASSE ENERGIE : C- CLASSE CLIMAT : C .
Les informations sur les risques auxquels ce bien est exposé sont disponibles sur le site Géorisques : www.georisques.gouv.fr
Bien soumis au statut de la copropriété : 141 lots dont 60 lots d'habitations / 60 caves / 21 garages Budget annuel des charges de copropriété : Provisions sur charges courantes et cotisation fond travaux Alur, sur la base de l'année 2025: 1845 / an ( entretien des parties communes, eau froide, chauffage, syndic ...)
Honoraires à la charge du vendeur. Dans une copropriété de 141 lots. Quote-part moyenne du budget prévisionnel 1 845 /an. Aucune procédure n'est en cours. Classe énergie C, Classe climat C Montant estimé des dépenses annuelles d'énergie pour un usage standard : entre 810.00 et 1140.00 sur les années 2021, 2022 et 2023 (abonnements compris). Les informations sur les risques auxquels ce bien est exposé sont disponibles sur le site Géorisques : georisques.gouv.fr.
Carte pro. 2602 2018 000 035 884. ARTES IMMOBILIER www.artesimmo.fr
55.33 m²
2 295 €
25 m²
3
1
1
1 (séparé)
1
153.71 € / mois
Oui
1961
Sud
1
Oui
Oui
Oui
Oui (141 lots)
Consommations énergétiques
Logement économe
166
Logement énergivore (kWhEP/m2/an)
Émissions de gaz à effet de serre
Faible émission de GES
22
Forte émission de GES(kgeqCO2/m2/an)
Contact Perrine FAURE
Contacter gratuitement à l'aide du formulaire ci-dessous.