Situé dans un quartier résidentiel recherché de Chambéry, ce très beau T3 de 63,90 m2 situé au 1er étage offre un cadre de vie harmonieux, paisible et fonctionnel, idéal pour celles et ceux qui souhaitent allier confort moderne, calme et proximité immédiate de l'hyper-centre. Son emplacement permet de profiter pleinement d'un environnement agréable tout en restant connecté aux commodités, aux services, aux transports et aux activités culturelles de la ville.
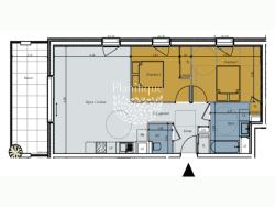
Dès l'entrée, un agréable dégagement mène à une pièce de vie particulièrement généreuse : le séjour-cuisine de 27,4 m2 constitue un véritable espace central, lumineux et convivial, offrant des volumes faciles à aménager. Sa configuration permet de créer aisément plusieurs zones de vie : un espace salon, un coin repas, et éventuellement un espace bureau pour télétravailler sereinement. La fluidité de circulation et l'ouverture sur l'extérieur apportent une sensation d'espace particulièrement appréciable.
Le balcon de 11,90 m2, un atout rare et précieux, prolonge naturellement la pièce de vie. Orienté au Nord-Ouest, il bénéficie d'une luminosité douce et agréable en fin de journée, parfaite pour savourer un moment de détente, lire, partager un dîner en plein air ou installer quelques plantes. Ce véritable extérieur est un espace à part entière où chacun pourra se créer un petit havre de paix.
La partie nuit, parfaitement distincte de la pièce principale, se compose de deux chambres. La première, d'une surface de 12,1 m2, offre un volume confortable permettant d'aménager un grand lit, des rangements et éventuellement un coin bureau. La seconde chambre, d'environ 10,1 m2, constitue un espace idéal pour une chambre d'enfant, une chambre d'amis ou encore un espace de travail selon les besoins. Les deux pièces bénéficient d'une configuration agréable et d'une belle facilité d'aménagement.
La salle de bains, d'une superficie de 5,6 m2, est bien pensée et fonctionnelle. Elle peut accueillir aisément des rangements supplémentaires et tout le nécessaire pour un quotidien pratique et confortable. Le WC séparé, d'environ 2 m2, renforce l'aspect fonctionnel du logement, un détail très apprécié dans les appartements de cette typologie.
Un dégagement de 4 m2 complète l'organisation du logement et permet une circulation fluide entre les pièces.
L'environnement dans lequel se situe cet appartement apporte un vrai supplément de confort : rues calmes, atmosphère résidentielle, proximité immédiate des commerces, des écoles, des espaces verts, des transports, tout en étant suffisamment en retrait pour profiter d'une tranquillité quotidienne. C'est un lieu qui conviendra aussi bien à une résidence principale qu'à un investissement pérenne, grâce à ses volumes, son agencement et son positionnement stratégique.
Ce T3 représente une belle opportunité sur le marché chambérien : des surfaces généreuses, un extérieur agréable, une disposition moderne et équilibrée, et un quartier de qualité où il fait bon vivre. Un bien rare qui mérite d'être visité.
Disponibilité : 2027. Pour tout renseignement complémentaire ou pour être accompagné dans votre projet immobilier, contactez Armel de Gramont Planifique Immobilier. Planifique Immobilier Bien plus qu'une agence. Les informations sur les risques auxquels ce bien est exposé sont disponibles sur le site Géorisques : www.georisques.gouv.fr
63.9 m²
4 382 €
27 m²
3
2
1
1
1 sur 5
Ouest
Nord
1
Oui
Oui
Oui
Oui
Contact VASINA Thomas
Contacter gratuitement à l'aide du formulaire ci-dessous.