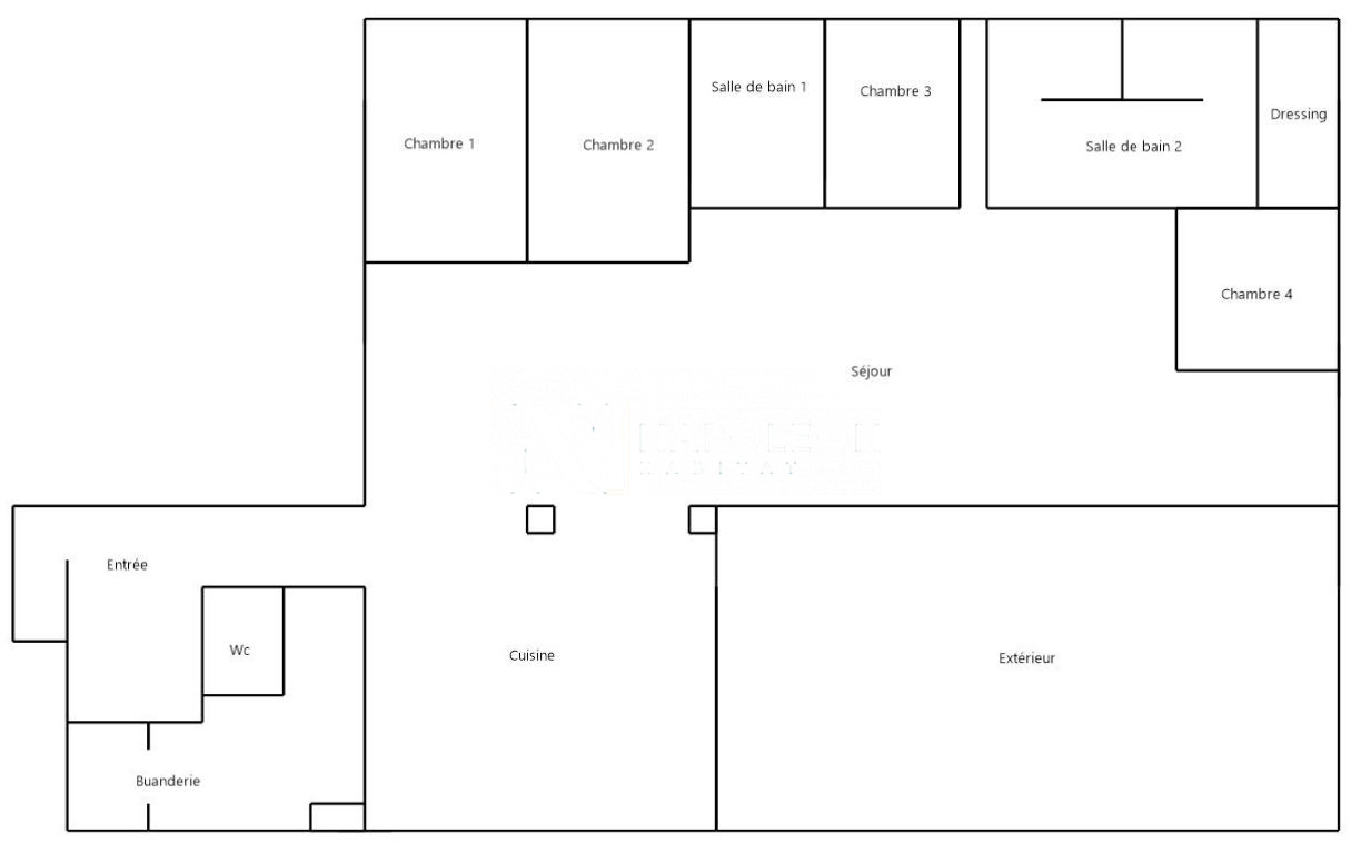
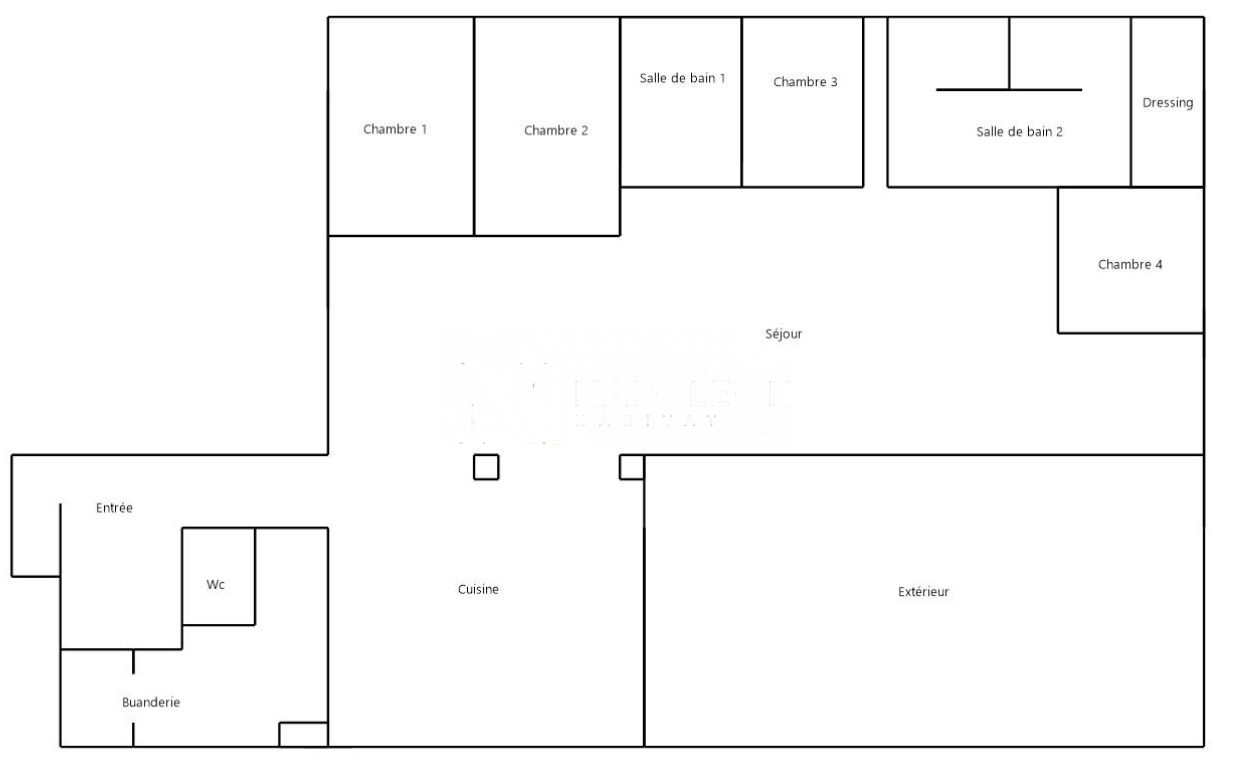
Situé en plein coeur d'Armentières, entre la gare et l'hôtel de ville, venez découvrir ce superbe appartement de caractère d'environ 250 m².
Ce bien rare offre de beaux volumes et une luminosité remarquable, notamment grâce à son séjour de près de 60 m² situé en angle de rue, agrémenté d'un parquet ancien et d'une cheminée élégante. L'appartement dispose de 6 chambres (dont 2 avec salle de bain privé), d'une belle salle de bain, d'un grand grenier et d'une cave.
À cela s'ajoute une annexe en duplex d'environ 30 m² (non incluse dans la surface habitable), à rénover. Cet espace, disposant d'un accès indépendant, peut facilement être transformé en studio, bureau ou espace locatif.
Vous bénéficierez d'un accès voiture privatif ainsi que de deux accès par les parties communes.
La copropriété est parfaitement entretenue : toiture et façade en excellent état.Des travaux de rafraîchissement sont à prévoir (principalement électricité et décoration) pour révéler tout le potentiel de ce bien unique.
Agence immobilière Logénord - Estimation gratuite
Honoraires à la charge du vendeur. Dans une copropriété de 5 lots. Quote-part moyenne du budget prévisionnel 2 000 /an. Aucune procédure n'est en cours. Classe énergie C, Classe climat C Montant moyen estimé des dépenses annuelles d'énergie pour un usage standard, établi à partir des prix de l'énergie de l'année 2021 : entre 2680.00 et 3680.00 . Les informations sur les risques auxquels ce bien est exposé sont disponibles sur le site Géorisques : georisques.gouv.fr.
Duplex
250 m²
1 288 €
60 m²
9
6
1
2
2
1 sur 3
166.60 € / mois
1900
Sud
Oui
2
1
Oui (5 lots)
Consommations énergétiques
Logement économe
172
Logement énergivore (kWhEP/m2/an)
Émissions de gaz à effet de serre
Faible émission de GES
26
Forte émission de GES(kgeqCO2/m2/an)
Contact Aymeric GRIMAULT
Contacter gratuitement à l'aide du formulaire ci-dessous.