Superbe duplex loft dernier étage triple expo / terrasse 22m2
La Rochelle 17000
0
Honoraires à la charge du vendeur.
L'Agence MON BIEN A LA MER, Spécialiste de l'immo neuf en Bord de Mer, vous présente :
TRAVAUX EN COURS - Livraison juin 2026 : Résidence au sud de LA ROCHELLE, axe Emile Normandin, entre le marais du Tasdon, plage d'Aytré et Port des Minimes, tous commerces et transports à proximité. Nombreuses pistes cyclables permettant d'accéder : Vieux Port 8min, Marais du Tasdon 5 min, gare TGV 2h30 Paris 7 min, 8 min campus universitaire, 6 min Plage du Roux. Ascenseur, Frais de notaire réduits.
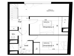
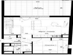
Superbe T4 duplex au dernier étage : - Séjour LOFT 28m2, double hauteur, donnant sur terrasse de 22m2, - Une chambre avec salle d'eau sur le premier niveau, wc séparés, placards, - A l'étage : deux chambres 12,18-11,81m2 avec puits de lumière (Velux électriques), 2è salle d'eau, placards, wc séparé, vide sur séjour, - Parking grande taille sous sol inclus.
Nous Consulter
Honoraires à la charge du vendeur. Non soumis au DPE. Les informations sur les risques auxquels ce bien est exposé sont disponibles sur le site Géorisques : georisques.gouv.fr.
Votre conseiller MON BIEN A LA MER : Gérant - .fr MON BIEN A LA MER Carte T CPI 2201 2018 000 025 040 RCP ACM IARD B1 7025278
Duplex
84.55 m²
5 381 €
28 m²
4
3
2
2 (séparés)
5 sur 5
Oui
1
1
Oui
Contact mon bien à la mer
Contacter gratuitement à l'aide du formulaire ci-dessous.