Superbe Duplex T4 de 94m ² avec deux Terrasses - Rue des Allié
Villeurbanne 69100
0
Honoraires à la charge du vendeur.
Quatuor vous présente ce T4 en duplex de 94m² en excellent état avec deux grandes terrasses, au 4ème et 5ème étages, situé rue des Alliés, Villeurbanne.
Visite virtuelle disponible sur les plateformes de vente.
Description du bien :
Appartement exposé Sud-Ouest, sans aucun vis-à-vis et dans une rue très calme, il se compose de :
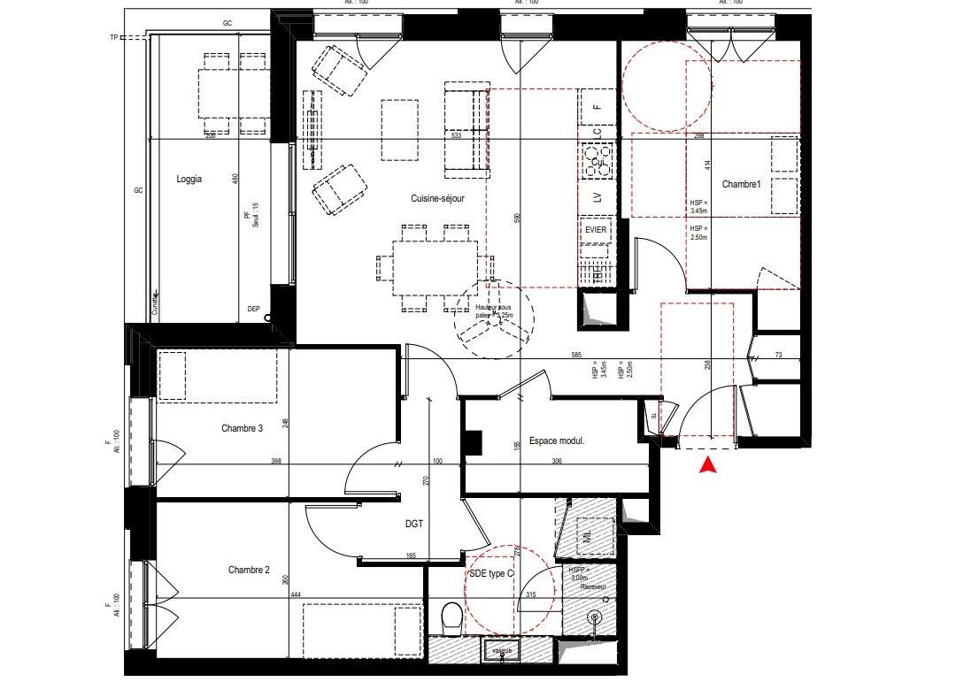
Au 4ème étage :
? ?Une agréable pièce de vie de 28m² avec cuisine ouverte et donnant sur une première terrasse de 23m² orientée Ouest et une seconde terrasse de 7m² orientée Sud. ? ?Une climatisation réversible ? ?Une douche à l'italienne avec WC ? ?Un espace bureau donnant sur la terrasse ? ?De nombreux rangements
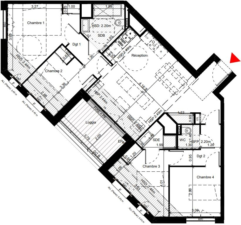
Au 5ème étage :
? ?Un espace nuit avec 3 chambres de 15m², 11m² et 9,4m², toutes avec placards intégrés. ? ?Une climatisation réversible dans le couloir pouvant alimenter les 3 pièces. ? ?Une salle de bains ? ?Un WC indépendant
Aucun travaux à prévoir, l'appartement est dans une copropriété de 2023.
Copropriété de 2023 composée de 32 lots. Majorité de propriétaires occupants. Une terrasse avec vue panoramique est mise à la disposition des copropriétaires sur le toit couvrant l'ensemble du bâtiment. La copropriété est saine, sécurisée et très bien entretenue. Aucun travaux à prévoir.
Localisation :
Idéalement situé à quelques minutes du futur 'Villeurbanne-Grand Centre' en cours d'aménagement à Gratte-ciel, l'appartement jouit de toutes les commodités à proximité immédiate et profitera des nouvelles structures de la ville. Pour les enfants, vous trouverez crèches, écoles, collèges, lycées et l'Université de la Doua à proximité.
Concernant les transports :
Les différents transports en commun vous emmèneront dans tout Lyon et Villeurbanne : ? ?Métro A arrêt 'Gratte-Ciel' à 10 minutes à pied ? ?T6 prévu pour 2026 à deux minutes à pied ? ?T1 arrêt 'Insa-Einstein' à 10 minutes à pied ? ?Bus : C17, 37, 27 et 69
Cet appartement clés en main vous offre une vie familiale saine dans un cadre de vie dynamique.
Honoraires à la charge du vendeur. Dans une copropriété de 32 lots. Aucune procédure n'est en cours. Classe énergie C, Classe climat C Montant moyen estimé des dépenses annuelles d'énergie pour un usage standard, établi à partir des prix de l'énergie de l'année 2023 : entre 411.00 et 556.00 . Les informations sur les risques auxquels ce bien est exposé sont disponibles sur le site Géorisques : georisques.gouv.fr.