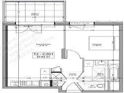
OIKO GESTION vous propose un superbe T2 de 42,64m² au 1er étages avec 7m² de balcon. L'appartement est composé d'un séjour sur balcon avec cuisine ouverte aménagée, d'une chambre, d'une salle de bain et d'un WC.
Un double box complètent ce bien.
Chauffage et eau chaude individuels.
À 7,5 km de Genève « La Ferme de l'Hôpital » est une résidence neuve, sécurisée avec espaces verts partagée par 7 bâtiments.
Chaque bâtiment est composé d'une vingtaine d'appartements répartis sur 2 étages maximum (avec ascenseur), d'un parking en sous-sol et d' un local à vélos.
N'hésitez pas à nous contacter !
Les informations sur les risques auxquels ce bien est exposé sont disponibles sur le site Géorisques : www. georisques. gouv.fr
42 m²
2
1
1
1
1
2
Consommations énergétiques
Logement économe
85
Logement énergivore (kWhEP/m2/an)
Émissions de gaz à effet de serre
Faible émission de GES
16
Forte émission de GES(kgeqCO2/m2/an)
Contact Coralie ROUX
Contacter gratuitement à l'aide du formulaire ci-dessous.