L'agence 'MON BIEN A LA MER', spécialiste de l'immobilier neuf sur les côtes Bretonnes, vous présente :
TRAVAUX EN COURS : Très rare : à TREGASTEL résidence de standing à 50m de la Baie de Sainte Anne, commerces à pied. Seulement 23 logements. Ascenseur, Menuiseries Alu Qualimarine, volets roulants électriques, isolation RE2020, chauffage électrique. Livraison été 2027, frais de notaire réduits.
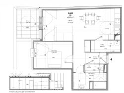
Superbe T2bis au 3è et dernier étage, exposé sud comprenant :
Honoraires à la charge du vendeur. Dans une copropriété de 22 lots. Aucune procédure n'est en cours. Non soumis au DPE. Les informations sur les risques auxquels ce bien est exposé sont disponibles sur le site Géorisques : georisques.gouv.fr.
Votre conseiller MON BIEN A LA MER : Gérant - .fr MON BIEN A LA MER Carte T CPI 2201 2018 000 025 040 RCP ACM IARD B1 7025278
62.2 m²
5 547 €
32 m²
2
1
1
1 (séparé)
3 sur 3
Oui
1
1
Oui
Oui (22 lots)
Contact mon bien à la mer
Contacter gratuitement à l'aide du formulaire ci-dessous.