Située à Vaulx-en-Velin dans un quartier en pleine transformation et profitant d'une nouvelle dynamique, cette résidence vous offres toutes commodités et les transports en commun à proximité immédiate avec la nouvelle ligne de tramway T9.
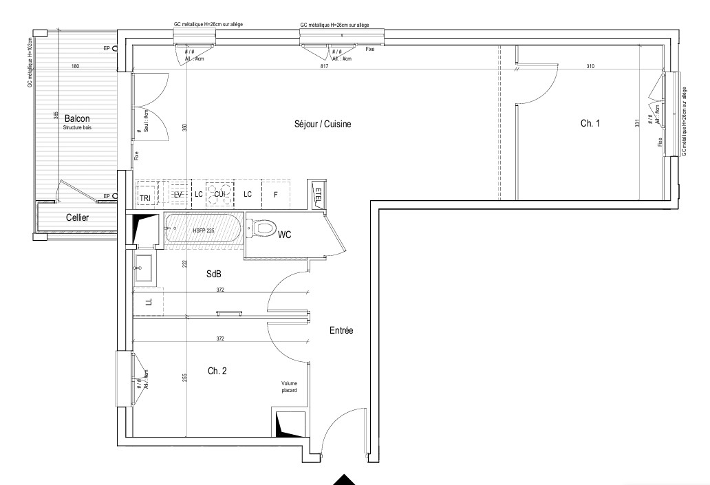
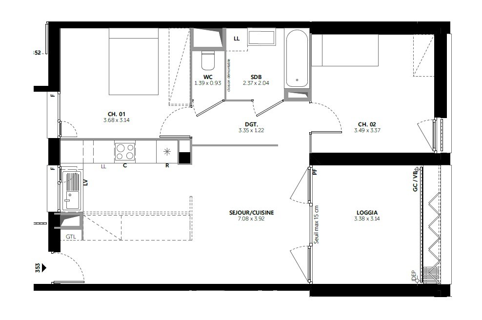
Appartement T3 de 63m² avec une belle pièce à vivre de 25m² ouverte sur un grand balcon de 13m², une salle d'eau, à l'étage retrouvez deux belles chambres, une autre salle de bain et wc séparé.
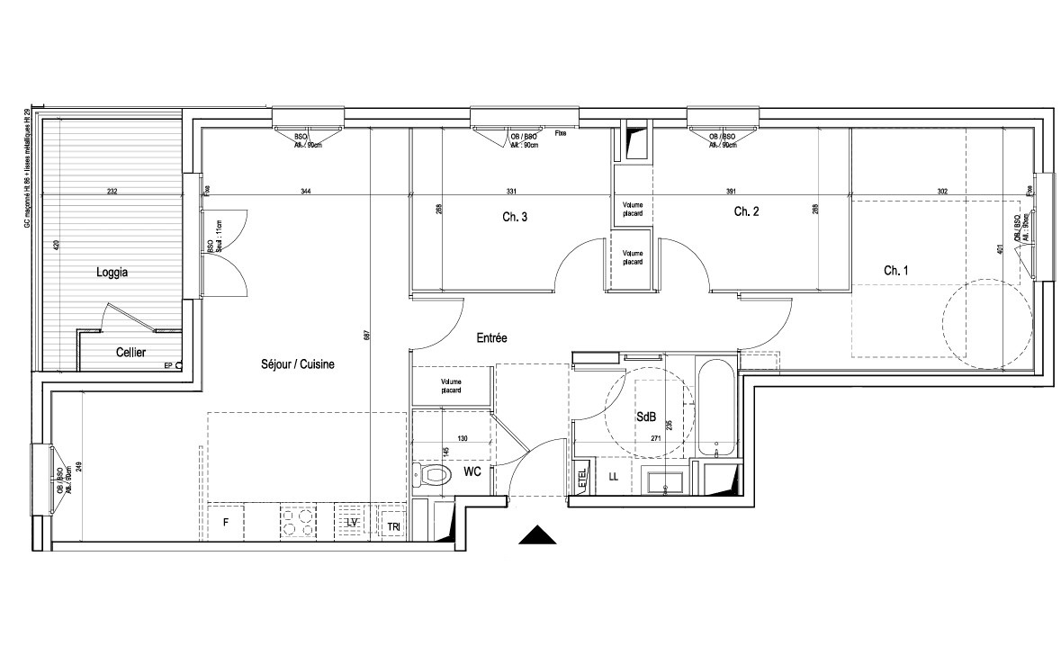
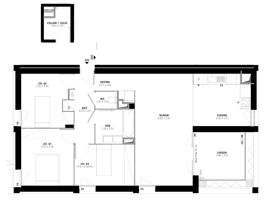
Prestations haut de gamme : carrelage grès émaillé 45x45 coloris au choix, sol stratifié coloris au choix dans les chambres, salle de bain équipée, résidence entièrement close, parking et cellier en sous-sol, etc.
Prix = 225 000 en TVA 5,5%, sous conditions d'éligibilité Parking sous-sol inclus Remise des clés en décembre 2026
Et bénéficiez aussi des avantages du neuf : -Financez jusqu'à 50% de votre achat, sans intérêts ! -Frais de notaire réduits à 2,5% au lieu de 8% -Exonération partielle de la taxe foncière (2 ans) -Charges réduites (Bâtiment BBC) -Dernières normes RT2012/RE2020
Photos non contractuelles et à caractère d'ambiance.
Honoraires à la charge du vendeur. Dans une copropriété de 55 lots. Aucune procédure n'est en cours. Non soumis au DPE. Les informations sur les risques auxquels ce bien est exposé sont disponibles sur le site Géorisques : georisques.gouv.fr.
60 m²
3 750 €
3
2
1
1 (séparé)
5 sur 5
Oui
1
1
Oui (55 lots)
Contact MONAPPART9 LYON
Contacter gratuitement à l'aide du formulaire ci-dessous.